

IMMOVISTA GmbH - Immobilienmakler Dresden
Herr Henry Brömme-Herrmann
004 ···
Nr. anzeigenPreise & Kosten
Provision für Käufer
3,57 %
Abschreibung/Anlage
Denkmalschutz-Afa
Lage
Die Villa befindet sich in zweiter Reihe und deutlich unterhalb der Hauptstraße. Sie liegt damit ruhig, umgeben von altem Baumbestand. Die Zufahrt erfolgt über eine gemeinsame Zufahrt des Nachbargrundstücks, dazu bestehen entsprechende Überfahrtsrechte. Die Dresdner Innenstadt liegt nur 10 Autominuten entfernt. Fußläufig...
Das Haus
Kategorie
Villa
Baujahr
1871
Energie & Heizung
Warum sehe ich diese Anzeige? – Du siehst diese Anzeige basierend auf Ihrer Navigation auf unserer Website und den Suchkriterien, die du verwendet hast.
Energieausweis: für diesen Gebäudetyp nicht notwendig
Weitere Energiedaten
Haustyp
Massivhaus
Details
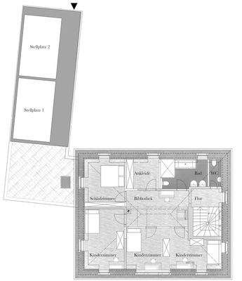
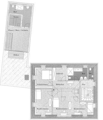
Objektbeschreibung
Zum Verkauf steht eine außergewöhnliche, denkmalgeschützte Villa (Kunstepoche/Historismus) in Bestlage der Radeberger Vorstadt (Preußisches Viertel). Bei diesem Angebot handelt es sich um die letzte unsanierte Villa am Dresdner Elbhang. Das hier angebotene Projekt mit dem Kaufpreis von 2.000.000 € versteht sich auf Basis der...
Ausstattung
- traumhaftes, parkähnliches Grundstück
- Wohnfläche von 200 m² (Villa) und 150 m² (Remise)
- 3 Pkw- Stellplätze
- 2.686 m² Grundstück, 750 €/m² Bodenrichtwert = theoretisch reiner Grundstückswert: 2.014.500,00 €
- Einleitungsvertrag für Abwasser mit Anbindung an Nachbargrundstück vorhanden
Preisinformation
3 Stellplätze
Weitere Informationen
Sonstiges
Das Angebot ist freibleibend und unverbindlich. Alle Informationen und Daten wurden nach bestem Wissen gemacht und beruhen auf Angaben der Auftraggeber. Eine Zwischenvermarktung bleibt vorbehalten. Die Angebote und Mitteilungen sind nur für den Empfänger persönlich bestimmt und müssen vertraulich behandelt werden...
Anbieter der Immobilie

Online-ID: 2mwsb5s
Referenznummer: 9108
Finde Angebote wie dieses
Hier geht es zu unserem Impressum, den Allgemeinen Geschäftsbedingungen, den Hinweisen zum Datenschutz und nutzungsbasierter Online-Werbung.