Schwabenhaus Ingolstadt - Samka Graf - Handelsvertretung für die Schwabenhaus GmbH

Samka Graf

Kontaktiere den Anbieter schriftlich, es ist keine Telefonnummer hinterlegt.

Dein Zuhause, so individuell wie du.

€ 309.482
Kaufpreis
139,10 m²
Wohnfläche ca.
4
Zimmer
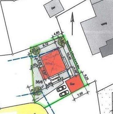
545 m²
Grundstücksfl. ca.

Der Anbieter dieses Objekts hat gegenüber der AVIV Germany GmbH als Betreiber dieses Online-Marktplatzes erklärt, nicht als Unternehmer im Sinne des § 1 KSchG zu handeln. Die im Verbraucherschutzrecht der Union verankerten Verbraucherrechte (insbesondere Informationspflichten und Rücktritts- bzw. Widerrufsrechte) finden auf den Vertrag zwischen dem Anbieter des Objekts und Ihnen (dem Interessenten) keine Anwendung.

Provisionsfrei
Gewerblicher Anbieter

Der Anbieter dieses Objekts hat gegenüber der AVIV Germany GmbH als Betreiber dieses Online-Marktplatzes erklärt, als Unternehmer im Sinne des § 1 KSchG zu handeln.

AdresseStraße nicht freigegeben
78126 Königsfeld im Schwarzwald 
(Erdmannsweiler)
Auf Karte ansehen

Preise & Kosten

Kaufpreis € 309.482

Provision für Käufer

provisionsfrei

Lage

Lage
Königsfeld im Schwarzwald liegt im südwestlichen Baden-Württemberg, etwa 12 Kilometer nordwestlich von Villingen-Schwenningen im Schwarzwald-Baar-Kreis. Das Baugrundstück befindet sich im Ortsteil Erdmannsweiler, am Ostabhang des Schwarzwaldes, etwa 4 Kilometer nordöstlich des Hauptortes Königsfeld in einer ruhigen...

Mehr anzeigen

Das Haus

Kategorie

Einfamilienhaus

  • Zustand: Neubau, projektiert
  • Gäste-WC

Energie & Heizung

Weitere Energiedaten

Heizungsart

Fußbodenheizung

Details

Objektbeschreibung

WELCOME HOME. WELCOME TO YOUR FUTURE.

Dein Zuhause ist mehr als vier Wände - es ist dein Rückzugsort, dein Investment, dein neuer Lebensabschnitt.
White&Black macht Wohneigentum bezahlbar, modern und flexibel.
Jetzt ist der richtige Moment, um anzukommen.

Ausstattung

THINK WHITE - Do it yourself.

- Fertige Gebäudehülle - du entscheidest über den Innenausbau
- Maximale Individualität - für kreative Köpfe & Macher
- Ideal für Eigenleistung - handwerkliches Geschick spart bares Geld
- Optimierte Grundrisse - smarte Wohnkonzepte für flexible Gestaltung
-...

Mehr anzeigen

Weitere Informationen

Sonstiges
Vereinbare einen persönlichen Beratungstermin, um über Deinen Haustraum und das angebotene Objekt zu sprechen.
Bitte beachte, dass die dargestellten Bilder und Grundrisse nur beispielhaft sind und unter Umständen Sonderbauteile enthalten, die nicht im angegebenen Preis enthalten sind.

Hab außerdem bitte...

Mehr anzeigen

Anbieter der Immobilie

Partner
user

Samka Graf

Dein Ansprechpartner

Kontaktiere den Anbieter schriftlich, es ist keine Telefonnummer hinterlegt.

Anbieter-Website Anbieter-Profil Anbieter-Impressum

Online-ID: 2mwtn5c

Referenznummer: WB-19693-Königsfeld im Sc

Finde Angebote wie dieses

imageimageimage

Hier geht es zu unserem Impressum, den Allgemeinen Geschäftsbedingungen, den Hinweisen zum Datenschutz und nutzungsbasierter Online-Werbung.