
Sparda Immobilien GmbH
Herr Kai Apel
004 ···
Nr. anzeigenPreise & Kosten
Provision für Käufer
3,57 % inkl. MwSt.
Lage
Grevesmühlen, eine der ältesten Städte Mecklenburg-Vorpommerns, liegt im Landkreis Nordwestmecklenburg, etwa 15 km südlich der Ostseeküste und gehört zur Metropolregion Hamburg. Erstmals 1226 als Gnewesmulne erwähnt, befindet sich die Stadt zwischen den Hansestädten Lübeck (40 km westlich) und Wismar (20 km östlich). Sie ist...
Die Wohnung
Derzeitige Nutzung
vermietet
Wohnanlage
Energie & Heizung
Warum sehe ich diese Anzeige? – Du siehst diese Anzeige basierend auf Ihrer Navigation auf unserer Website und den Suchkriterien, die du verwendet hast.
Energieausweistyp
Verbrauchsausweis
Gebäudetyp
Wohngebäude
Baujahr laut Energieausweis
1994
Wesentliche Energieträger
FERN
Gültigkeit
bis 27.09.2030
Effizienzklasse
B
Endenergieverbrauch
71,00 kWh/(m²·a)
Details
Objektbeschreibung
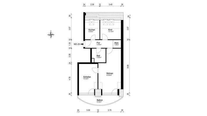
Bei dieser 2,5-Zimmer-Dachgeschosswohnung handelt es sich um eine sehr gepflegte, vermietete Eigentumswohnung in einer Wohnanlage aus dem Jahre 1994 mit 29 Wohneinheiten.
Die Wohnung befindet sich auf der dritten Etage im Dachgeschoss. Durch die Wohnungstür auf der linken Seite des Flures befindet sich die gepflegte...
Ausstattung
Fenster:
doppelt verglaste Kunststofffenster
Heizung und Warmwasser:
Fernwärme
Bodenbeläge:
Laminat, Teppich und Fliesen
Küche:
Einbauküche
Bäder:
innenliegendes Wannenbad
Modernisierungen:
Küche 2015 renoviert und aufgewertet
Besonderheiten:
großer Balkon mit...
Preisinformation
1 Stellplatz
Ist-Mieteinnahmen pro Jahr: 4.680,00 EUR
Weitere Informationen
Sonstiges
Die Courtage in Höhe von 3,57 % inkl. der gesetzl. gültigen MwSt. ist vom Käufer an die Sparda Immobilien GmbH zu zahlen.
Weitere attraktive Angebote finden Sie auch auf www.spardaimmobilien.de
Stichworte
Stellplatz vorhanden, vermietbare Fläche: 64,00 m², Anzahl der Schlafzimmer: 2, Anzahl der...
Anbieter der Immobilie
Sparda Immobilien GmbH
Beim Strohhause 27, 20097 Hamburg
Online-ID: 2mwu65b
Referenznummer: KA_9158
Finde Angebote wie dieses
Hier geht es zu unserem Impressum, den Allgemeinen Geschäftsbedingungen, den Hinweisen zum Datenschutz und nutzungsbasierter Online-Werbung.