
Bien-Zenker Bert Thiemer
Herrn Bert Thiemer
017 ···
Nr. anzeigenPreise & Kosten
Provision für Käufer
Bitte beachte, das Angebot kann bei Vertragsabschluss die Zahlung einer Provision beinhalten. Weitere Informationen erhältst Du vom Anbieter.
Lage
Der Standort Stolpen bietet Ihnen eine hervorragende Infrastruktur und Lebensqualität. In unmittelbarer Umgebung finden Sie vielfältige Bildungseinrichtungen, darunter Kindergärten und Schulen, die eine optimale Betreuung und Ausbildung für Ihre Kinder sicherstellen. Das Gesundheitssystem ist gut ausgebaut, mit Ärzten...
Das Haus
Kategorie
Einfamilienhaus
Details
Objektbeschreibung
Nutzen Sie die neuen Fördermöglichkeiten - dieses Haus ist ein Effizienzhaus 55.
Mit der integrierten Lüftung und Kühlung haben Sie auch im Hochsommer immer ein angenehmes Raumklima. Es wird in der Ausstattungsstufe "Zur Ausstattung fertig" hergestellt. Weniger Eigenleistung - kein Problem. Mehr Eigenleistungen - auch...
Ausstattung
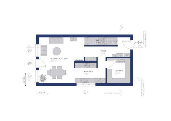
Das BALANCE 120 überzeugt durch seine durchdachte Raumaufteilung mit vier Zimmern, die optimal auf die Bedürfnisse einer vierköpfigen Familie zugeschnitten sind. Der intelligente Grundriss ermöglicht eine flexible Nutzung der Räume, sodass jedes Familienmitglied seinen persönlichen Rückzugsort finden kann. Schlafzimmer sind...
Anbieter der Immobilie
Bien-Zenker Bert Thiemer
Am Hügel 3a, 01458 Ottendorf-Okrilla
Online-ID: 2mwub5y
Referenznummer: 12099-2 Stolp B120
Finde Angebote wie dieses
Hier geht es zu unserem Impressum, den Allgemeinen Geschäftsbedingungen, den Hinweisen zum Datenschutz und nutzungsbasierter Online-Werbung.