
Crozilla.com
Simic dom ltd
+38 ···
Nr. anzeigenPreise & Kosten
Provision für Käufer
Bitte beachte, das Angebot kann bei Vertragsabschluss die Zahlung einer Provision beinhalten. Weitere Informationen erhältst Du vom Anbieter.
Die Wohnung
Wohnungslage
3. Geschoss
Details
Objektbeschreibung
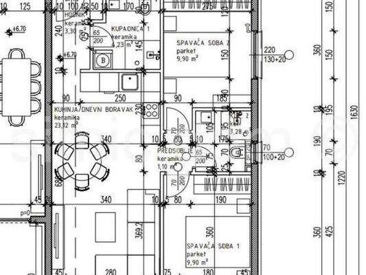
Zum Verkauf steht ein Neubauapartment auf der Südseite der Insel Ciovo, nur 10 Gehminuten vom Strand entfernt. Das Apartment trägt die Bezeichnung S8 und befindet sich im dritten Stock eines Gebäudes mit Aufzug. Es verfügt über eine Gesamtinnenfläche von 55,46 m2, einen Balkon von 14,62 m2 und eine Dachterrasse von 70 m2...
Weitere Informationen
Stichworte
Anzahl der Badezimmer: 2, 1 Etagen
Anbieter der Immobilie
Crozilla.com
Nova cesta 60, 10000 ZAGREB
Online-ID: 2mwv35k
Referenznummer: 18603053_1
Finde Angebote wie dieses
Hier geht es zu unserem Impressum, den Allgemeinen Geschäftsbedingungen, den Hinweisen zum Datenschutz und nutzungsbasierter Online-Werbung.