

GVG Immo Völklingen GmBH
Herr Erik Reiner
068 ···
Nr. anzeigenPreise & Kosten
Provision für Käufer
provisionsfrei
Lage
Lagebeschreibung:
Das Neubaugebiet befindet sich in Saarbrücken–Klahrental, einem grünen, ruhigen und familienfreundlichen Stadtteil im Südwesten der Landeshauptstadt.
Zentrum Saarbrücken ca. 10 Fahrminuten entfernt
Autobahnanbindung A620 & A8 in wenigen Minuten erreichbar
Bushaltestelle...
Das Grundstück
Energie & Heizung
Warum sehe ich diese Anzeige? – Du siehst diese Anzeige basierend auf Ihrer Navigation auf unserer Website und den Suchkriterien, die du verwendet hast.
Energieausweis: für diesen Gebäudetyp nicht notwendig
Details
Objektbeschreibung
??? Objektbeschreibung:
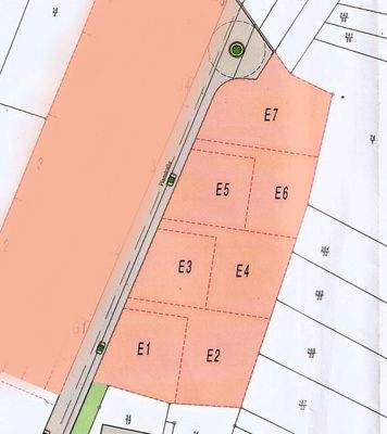
Im idyllischen Saarbrücker Stadtteil Klahrental entsteht ein modernes Neubaugebiet mit insgesamt 27 Grundstücken.
Davon stehen 7 exklusive Bauplätze für freistehende Einfamilienhäuser zum Verkauf.
Die Erschließungsarbeiten sind bereits in Planung und werden bis Juni 2026 vollständig...
Ausstattung
?? Ausstattung / Merkmale:
7 Baugrundstücke für freistehende Einfamilienhäuser
Kaufpreis: ab 147.000 € bis 250.000 € (je nach Grundstücksgröße und Lage im Baugebiet)
?? Grundstücksgrößen: ca. 420 m² – 620 m²
Baubeginn ab Juni 2026
Erschließung vollständig abgeschlossen (Wasser, Strom, Kanal...
Weitere Informationen
Sonstiges
Sonstiges:
Die Erschließung erfolgt bis spätestens Juni 2026
Baugenehmigung nach Bebauungsplan möglich
Baubeginn ab Juni 2026
Kaufpreis richtet sich nach Lage und Größe des Grundstücks
Maklerprovision: provisionsfrei für den Käufer
Anbieter der Immobilie

Online-ID: 2mwvd57
Finde Angebote wie dieses
Hier geht es zu unserem Impressum, den Allgemeinen Geschäftsbedingungen, den Hinweisen zum Datenschutz und nutzungsbasierter Online-Werbung.