
Von Poll Real Estate Teneriffa
Von Poll Tenerife South
003 ···
Nr. anzeigenPreise & Kosten
Provision für Käufer
Bitte beachte, das Angebot kann bei Vertragsabschluss die Zahlung einer Provision beinhalten. Weitere Informationen erhältst Du vom Anbieter.
Lage
Umringt von einer wunderschönen Berglandschaft ist Adeje ein mittelgroßes, einheimisches Dorf am Rande der touristischen Zonen. Gelegen am Naturschutzgebiet des berühmten Barranco del Infierno, welche zu den bekanntesten Wanderrouten Teneriffas gehört, bietet die kleine Ortschaft alles was man im Alltag braucht. Die Ortsmitte...
Die Wohnung
Wohnungslage
Erdgeschoss
Wohnanlage
Details
Objektbeschreibung
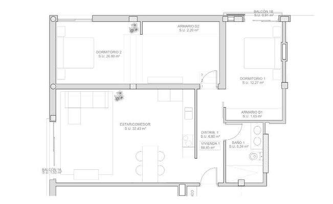
Diese moderne und äußerst gepflegte Wohnung befindet sich im Herzen von Adeje und vereint stilvolles Wohnen mit urbaner Lebensqualität. Sie liegt im Erdgeschoss eines modernen, kleinen Wohnkomplexes mit nur wenigen Einheiten, was eine ruhige und angenehme Wohnatmosphäre garantiert. Ein besonderes Highlight ist der...
Ausstattung
- Erdgeschosswohnung
- Barrierefrei
- 1 Schlafzimmer
- Modern und schön eingerichtet
- offene Einbauküche
- Badezimmer mit Badewanne
- Gemeinschaftspool auf der Dachterrasse
- Kleine Gemeinschaftsanlage
Weitere Informationen
Sonstiges
HAFTUNG: Wir weisen darauf hin, dass die von uns übermittelten Objektinformationen, Unterlagen, Pläne und Informationen vom Verkäufer bzw. Eigentümer stammen. Wir haften daher nicht für die Richtigkeit oder Vollständigkeit der Informationen im Allgemeinen. Alle Immobilienangebote sind freibleibend und...
Anbieter der Immobilie
Von Poll Real Estate Teneriffa
Av. Chayofita 18, C.C. Parque Santiago 6, Local 24, 38650 LOS CRISTIANOS
Online-ID: 2mwwj5r
Referenznummer: ES 25 318 5704
Finde Angebote wie dieses
Hier geht es zu unserem Impressum, den Allgemeinen Geschäftsbedingungen, den Hinweisen zum Datenschutz und nutzungsbasierter Online-Werbung.