

Reihenmittelhaus zum Kauf385000 €2.567 €/m²6 Zimmer • 150 m² • 231 m² Grundstück
385000 €
2.567 €/m²
6 Zimmer • 150 m² • 231 m² Grundstück
150m² Familienglück mit Zukunft - Modernisiert & Energieeffizient: Reihenmittelhaus in Gladbeck
Merkmale
- Bezug: nach Absprache
- 231 m² Grundstück
- EinbaukĂĽche
- Keller
- 3 Stellplätze: 3 Garagen
- Gäste-WC
- Balkon
- Garten
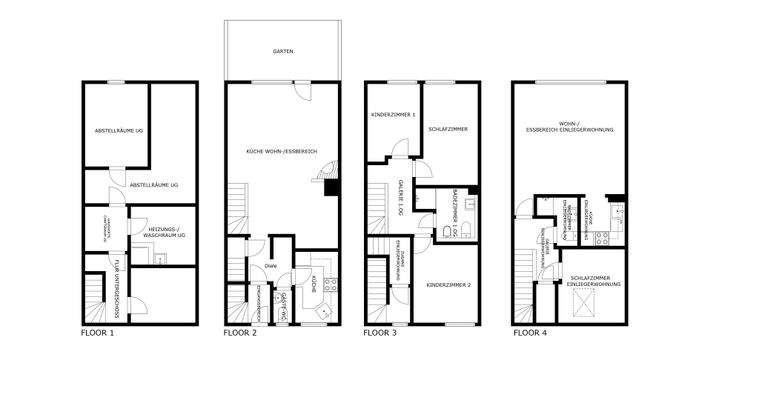
Grundrisse
Grundrisse
1 / 5
Realisiere Dein Projekt
Bausubstanz und Energie
Energieausweis
C
- Baujahr1985
- HeizungsartZentralheizung
- EnergieträgerFernwärme
Preisdetails
Kaufpreis
385000 €
2.566,67 €/m²
Provision für Käufer
3,15% inkl.gesetzl.Mwst.
3,15% inkl.gesetzl.Mwst. Käuferprovision, verdient und fällig nach notarieller Beurkundung.
3,15% inkl.gesetzl.Mwst. Käuferprovision, verdient und fällig nach notarieller Beurkundung.
Weitere Preisinformationen
3 Garagenstellplätze
Geschätzte Gesamtkosten
429.853 €1
Kaufpreis
385.000 €
Kaufnebenkosten
44.853 €
2Notarkosten (1,5%)
5.775 €
Grunderwerbsteuer (6,5%)
25.025 €
Provision für Käufer (3,15%)
12.128 €
Grundbucheintrag (0,5%)
1.925 €
1Der angezeigte Wert ist eine automatisch berechnete Schätzung von immowelt.
2Bei den Angaben handelt es sich um ortsübliche Werte. Individuelle Kosten können abweichen.
Lage

Scheideweg 42a, Zweckel, Gladbeck (45966)
Weitere Informationen
Weitere Services
Lust auf eine Besichtigung?
Eine Frage zur Immobilie?
Ăśber den Anbieter
Weitere Unterlagen
Online-ID: 2mwzt5z
Referenznummer: 4580958

HomeRaum Immobilien e.K.
Wie zufrieden bist du mit dieser Seite (nicht mit der Immobilie selbst)?

