

Kominos Immobilien
Herr Petros Kominos
027 ···
Nr. anzeigenPreise & Kosten
Provision für Käufer
Bitte beachte, das Angebot kann bei Vertragsabschluss die Zahlung einer Provision beinhalten. Weitere Informationen erhältst Du vom Anbieter.
Lage
Das Haus befindet sich im beliebten Ortsteil Lichtringhausen, der zur Stadt Attendorn gehört.
Hier genießen Sie Ruhe, Natur und Nachbarschaft auf modernem Niveau - umgeben von gepflegten Einfamilienhäusern und grüner Umgebung.
Einkaufsmöglichkeiten, Schulen, Kindergärten und Ärzte erreichen Sie in wenigen...
Das Haus
Kategorie
Einfamilienhaus
Baujahr
2020
Energie & Heizung
Warum sehe ich diese Anzeige? – Du siehst diese Anzeige basierend auf Ihrer Navigation auf unserer Website und den Suchkriterien, die du verwendet hast.
Weitere Energiedaten
Haustyp
Fertighaus
Heizungsart
Fußbodenheizung, Luft-/Wasser-Wärmepumpe, Zentralheizung
Details
Objektbeschreibung
Modernes Wohnen in Bestlage von Lichtringhausen
Neuwertiges Einfamilienhaus der Firma Büdenbender mit Doppelcarport und großem Grundstück.
Dieses hochwertige Einfamilienhaus aus dem Jahr 2020 überzeugt durch moderne Architektur, energieeffiziente Ausstattung und ein stilvolles Wohnkonzept - perfekt für Familien...
Ausstattung
- Baujahr 2020
- Fertighaus der Marke Büdenbender
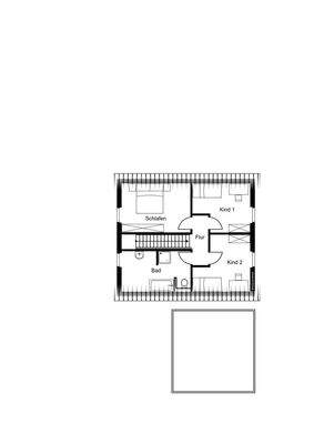
- Wohnfläche: ca. 121 m² + ca. 10 m² Nutzfläche
- Grundstück: 806 m²
- Doppelcarport mit integriertem Abstellraum
- Fußbodenheizung im gesamten Haus
- Moderne Wärmepumpe
- 3-fach verglaste Kunststofffenster in Anthrazit
- Vinylboden in den Wohn- und...
Preisinformation
2 Carportplätze
2 Stellplätze
Weitere Informationen
Sonstiges
Weitere Informationen, Grundrisse und Fotos zu dieser und anderen Immobilien finden Sie auf kominos-immobilien.de
FOLGEN SIE UNS AUF INSTAGRAM & FACEBOOK
Sie haben Fragen zur Finanzierung / Förderfähigkeit... Sprechen Sie uns an. Wir prüfen die Möglichkeit auf Finanzierung/Förderung für...
Anbieter der Immobilie
Kominos Immobilien
Niederste Str. 4, 57439 Attendorn

Online-ID: 2mx3q5f
Referenznummer: 4203
Finde Angebote wie dieses
Hier geht es zu unserem Impressum, den Allgemeinen Geschäftsbedingungen, den Hinweisen zum Datenschutz und nutzungsbasierter Online-Werbung.