
ohne-makler.net - Immobilien selbst vermarkten
Angebot von Joachim Freiesleben / Gerfried Gogolin
023 ···
Nr. anzeigenPreise & Kosten
Provision für Käufer
provisionsfrei
Lage
Diese besondere Immobilie befindet sich in der gemütlichen Altstadt von Waltrop.
Fussläufig erreichbar sind verschiedenste Einkaufsmöglichkeiten, Ärzte, Apotheken, Restaurants, Sportclubs und der Stadtpark.
Auch Grundschulen, Kindergärten und weiterführende Schulen sind schnell erreichbar.
Waltrop liegt...
Das Haus
Kategorie
Mehrfamilienhaus
Baujahr
1900
Bezug
nach Absprache
Energie & Heizung
Warum sehe ich diese Anzeige? – Du siehst diese Anzeige basierend auf Ihrer Navigation auf unserer Website und den Suchkriterien, die du verwendet hast.
Energieausweistyp
Bedarfsausweis
Gebäudetyp
Wohngebäude
Endenergiebedarf
32,00 kWh/(m²·a)
Weitere Energiedaten
Energieträger
Gas
Heizungsart
offener Kamin, Zentralheizung
Details
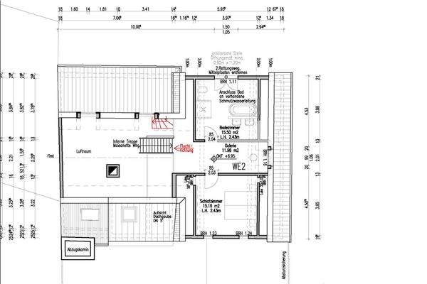
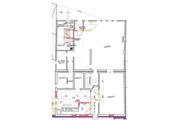
Objektbeschreibung
360°-Rundgang: https://www.ohne-makler.net/panorama/322594/
FREIESLEBEN-LUXUSIMMOBILIEN präsentiert Ihnen dieses einzigartige, repräsentative Wohn- und Geschäftshaus mit renommiertem Restaurant in der historischen Waltroper Altstadt.
Die Links für die virtuellen Rundgänge der Immobilie finden Sie...
Ausstattung
Terrasse, Keller, Dachterrasse, Vollbad, Duschbad, Einbauküche, Gäste-WC, Kamin, Parkett, Teppichboden, Fliesen
Bemerkungen:
Jahres Ist-Miete/Pacht ohne Vermietung der Maisonette-Wohnung Netto: 47.760,00€
Jahres Soll-Miete/Pacht Netto inkl. Dauervermietung der Maisonette-Wohnung: 60.960,-€
- Bei...
Weitere Informationen
Sonstiges
Heizungsart: Zentralheizung
Energieträger: Gas
Dies ist ein freibleibendes Angebot der
FREIESLEBEN GmbH,
Steinstraße 14
45657 Recklinghausen
Tel.: 02361 - 90 61 030
Internet: www.immobilienmakler12.de
eMail: info@immobilienmakler12.de
Sie können uns MONTAG bis...
Anbieter der Immobilie
ohne-makler.net - Immobilien selbst vermarkten
Humboldtstr. 25 A, 21509 Glinde
Online-ID: 2mx4858
Referenznummer: 322594
Finde Angebote wie dieses
Hier geht es zu unserem Impressum, den Allgemeinen Geschäftsbedingungen, den Hinweisen zum Datenschutz und nutzungsbasierter Online-Werbung.