
SCHAUBAU GmbH Bauträger + Erschliessungen
Herr Thomas Schauder
095 ···
Nr. anzeigenPreise & Kosten
Provision für Käufer
provisionsfrei
Abschreibung/Anlage
als Kapitalanlage geeignet
Lage
Diese wunderschöne Wohnung liegt im Herzen der Stadt Coburg zwischen Morizkirche und Marktplatz. Die anliegenden Straßen sind wenig befahren und verkehrsberuhigt. Hofgarten und Schlossplatz liegen in der Nähe. Von dieser Topadresse erreichen Sie mit wenigen Schritten die Fußgängerzone in der Innenstadt. Stadtbushaltestellen...
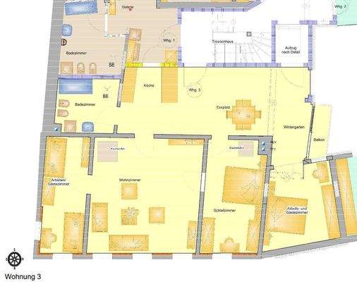
Die Wohnung
Wohnungslage
1. Geschoss
Bezug
Erstbezug nach Sanierung
Derzeitige Nutzung
frei
Wohnanlage
Energie & Heizung
Warum sehe ich diese Anzeige? – Du siehst diese Anzeige basierend auf Ihrer Navigation auf unserer Website und den Suchkriterien, die du verwendet hast.
Energieausweistyp
Bedarfsausweis
Gebäudetyp
Wohngebäude
Baujahr laut Energieausweis
2021
Wesentliche Energieträger
Fernwärme
Gültigkeit
15.01.2021 bis 15.01.2031
Effizienzklasse
C
Endenergiebedarf
96,20 kWh/(m²·a)
Weitere Energiedaten
Energieträger
Fernwärme
Heizungsart
Fußbodenheizung, Ofen, Zentralheizung
Details
Weitere Informationen
Traumwohnung mit tollen Extras
Die großartige Aussicht, herrliche Besonnung, die großzügige Raumaufteilung und hochwertige Ausstattung lassen in dieser Wohnung kaum noch Wünsche offen. Diese besondere Wohnung ist mitten im Zentrum gelegen, umgeben von Baudenkmalen, Kirchen und Schlössern und mit Aussicht über die...
Dokumente
Anbieter der Immobilie
SCHAUBAU GmbH Bauträger + Erschliessungen
Grafengasse 7, 96450 Coburg
Online-ID: 2mx5p58
Finde Angebote wie dieses
Hier geht es zu unserem Impressum, den Allgemeinen Geschäftsbedingungen, den Hinweisen zum Datenschutz und nutzungsbasierter Online-Werbung.