
Euphoria Immobilien GmbH
Abteilung Vermietung & Verkauf
Kontaktiere den Anbieter schriftlich, es ist keine Telefonnummer hinterlegt.
Preise & Kosten
Kaution
3135
Provision für Mieter
provisionsfrei
Warum sehe ich diese Anzeige? – Du siehst diese Anzeige basierend auf Ihrer Navigation auf unserer Website und den Suchkriterien, die du verwendet hast.
Lage
1A-Lage
In der A-Lage der Stadt Gotha, direkt in der Fußgängerzone des Stadtzentrums, befindet sich ein attraktiver Laden zur Vermietung. Der Stadtteil zeichnet sich durch seine historische Altstadt mit malerischen Fachwerkhäusern und gemütlichen Cafés aus. Einkaufsmöglichkeiten, Restaurants und kulturelle...
Die Ladenfläche
Kategorie
Laden
Baujahr
1998
Bezug
sofort
Erdgeschoss
Energie & Heizung
Warum sehe ich diese Anzeige? – Du siehst diese Anzeige basierend auf Ihrer Navigation auf unserer Website und den Suchkriterien, die du verwendet hast.
Wärme
Energieausweistyp
Verbrauchsausweis
Gebäudetyp
Nicht-Wohngebäude
Baujahr laut Energieausweis
1998
Wesentliche Energieträger
Gas
Gültigkeit
26.04.2019 bis 25.04.2029
Endenergieverbrauch (Wärme)
74,90 kWh/(m²·a) - Warmwasser enthalten
Weitere Energiedaten
Energieträger
Gas
Heizungsart
Zentralheizung
Details
Objektbeschreibung
Das hier angebotene Gewerbeeinheit befindet sich in einem Gebäude, das im Jahr 1998 erbaut wurde. Die Energieeffizienzklasse B weist darauf hin, dass die Immobilie in puncto Energieverbrauch gut abschneidet. Zudem ist die Gewerbeeinheit barrierefrei zugänglich, was eine Vielzahl von potenziellen Kunden anspricht. Die...
Ausstattung
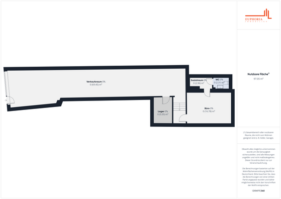
Räumliche Aufteilung:
- Ladenfläche
- Durchgangszimmer mit Treppenaufgang
- Küche / Aufenthaltsraum
- Lagerraum
- WC
- Nebenraum WC
Gerne kann diverses Mobiliar des Vormieters nach Rücksprache übernommen werden!
Weitere Informationen
Stichworte
Tiefgarage vorhanden, Gesamtfläche: 97,05 m², Zustand nach Vereinbarung
Anbieter der Immobilie
Euphoria Immobilien GmbH
Markt 17, 98646 Hildburghausen
Abteilung Vermietung & Verkauf
Dein Ansprechpartner
Kontaktiere den Anbieter schriftlich, es ist keine Telefonnummer hinterlegt.
Online-ID: 2mx645k
Referenznummer: 5427#PBUvDz
Finde Angebote wie dieses
Hier geht es zu unserem Impressum, den Allgemeinen Geschäftsbedingungen, den Hinweisen zum Datenschutz und nutzungsbasierter Online-Werbung.