




Neubauprojekt · provisionsfrei
Neubauwohnungen der Extraklasse in Horb
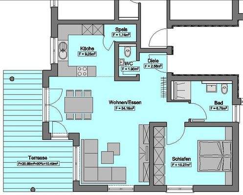
Bezugsbereit 2025 • 2,5 bis 3,5 Zimmer • 82 bis 100 m²
Über dieses Projekt
Einheiten des Neubauprojekts
Neubauwohnungen der Extraklasse in Horb: 6 Einheiten verfügbar von insgesamt 6
Merkmale
- Wohnung
- 6 Einheiten
- Balkon, Terrasse
- Gehoben
- Fliesen, Kunststoff
Realisiere Dein Projekt
Bausubstanz und Energie
- HeizungsartFußbodenheizung
- EnergieträgerLuft-/Wasser-Wärmepumpe
Preisdetails
Lage

Robert - Bosch - Straße 31, Bildechingen, Horb am Neckar (72160)
Weitere Services
Lust auf eine Besichtigung?
Eine Frage zum Projekt?
Anbieter des Projekts
Humboldtstr. 25 A, 21509 Glinde
Partnerschaft
ohne-makler.net KundenserviceDein Kontakt
Online-ID: k2zaa32
Anzeigen ID: 25S5Q7YV3DXF
Wie zufrieden bist du mit dieser Seite (nicht mit der Immobilie selbst)?






