

D.E.I.N. Immobilien GmbH
Herr Stjepan Babic, BA MA
+43 ···
Nr. anzeigenPreise & Kosten
Provision für Käufer
3% des Kaufpreises zzgl. 20% USt.
Lage
Hetmanekgasse, U6 Perfektastraße
Das Haus
Kategorie
Reihenmittelhaus
Energie & Heizung
Warum sehe ich diese Anzeige? – Du siehst diese Anzeige basierend auf Ihrer Navigation auf unserer Website und den Suchkriterien, die du verwendet hast.
Heizwärmebedarf (HWB)
47,00 kWh/(m²·a)
Gesamtenergieeffizienz (fGEE)
0,69
Weitere Energiedaten
Haustyp
Fertighaus
Heizungsart
Fußbodenheizung, Luft-/Wasser-Wärmepumpe
Details
Objektbeschreibung
INKL. KÜCHE!
++NEU++ EIGENGRUND!
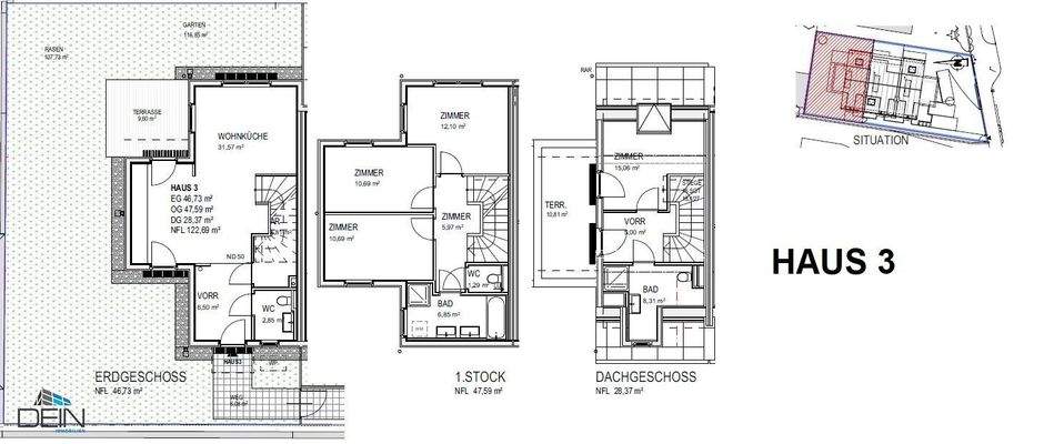
Zum Verkauf gelangen drei ca. 122,69 m² bis ca. 133,36 m² große Reihenhäuser mit 5 bis 6 Zimmern und Freiflächen (Eigengarten, Terrasse) in ruhiger Lage nahe der U6 Station Perfektastraße.
Raumaufteilung Haus 1:
EG: Vorraum, separate...
Preisinformation
1 Stellplatz
Weitere Informationen
Stichworte
Stellplatz vorhanden, Nutzfläche: 222,10 m², Gesamtfläche: 222,10 m², Anzahl der Badezimmer: 2, Anzahl der separaten WCs: 3, Anzahl Terrassen: 2, Balkon-Terrassen-Fläche: 24,00 m², Gartenfläche: 73,00 m², Bundesland: Wien
Anbieter der Immobilie
D.E.I.N. Immobilien GmbH
Anton-Freunschlag-Gasse 11, 1230 WIEN

Online-ID: 2mx7m5l
Referenznummer: OBGC202512051402158770b405c8b70
Finde Angebote wie dieses
Günstige Immobilienfinanzierung einfach online berechnen
Persönliches Angebot berechnenWarum sehe ich diese Werbung? – Du siehst diese Werbung basierend auf Deiner Navigation auf unserer Website und der von Dir verwendeten Suchkriterien.
Diese Werbung wird bezahlt von durchblicker
Werbung melden
Hier geht es zu unserem Impressum, den Allgemeinen Geschäftsbedingungen, den Hinweisen zum Datenschutz und nutzungsbasierter Online-Werbung.