

Wesoly Immobilien
Herr Nikolaus Rudolph
089 ···
Nr. anzeigenPreise & Kosten
Kaution
5.325,00
Warum sehe ich diese Anzeige? – Du siehst diese Anzeige basierend auf Ihrer Navigation auf unserer Website und den Suchkriterien, die du verwendet hast.
Lage
Die Wohnung liegt im Münchener Stadtteil Trudering-Riem. Dieser Stadtteil zeichnet sich durch eine gute Infrastruktur und eine angenehme Wohnumgebung aus.
Öffentliche Verkehrsanbindung:
. U-Bahn: Die nächstgelegene U-Bahn-Station ist "Trudering" (U2), die eine schnelle...
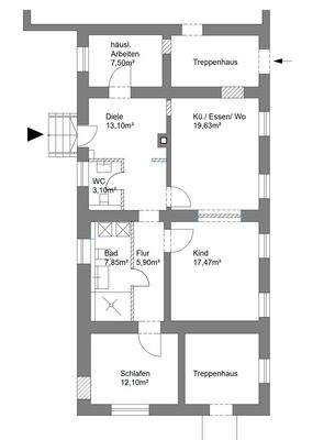
Die Wohnung
Wohnungslage
Erdgeschoss
Bezug
01.02.2026
Wohnanlage
Energie & Heizung
Warum sehe ich diese Anzeige? – Du siehst diese Anzeige basierend auf Ihrer Navigation auf unserer Website und den Suchkriterien, die du verwendet hast.
Energieausweistyp
Bedarfsausweis
Gebäudetyp
Wohngebäude
Baujahr laut Energieausweis
1898
Wesentliche Energieträger
GAS
Gültigkeit
bis 11.09.2028
Effizienzklasse
F
Endenergiebedarf
196,90 kWh/(m²·a)
Weitere Energiedaten
Energieträger
Gas
Heizungsart
Fußbodenheizung
Details
Objektbeschreibung
Diese großzügige 3,5-Zimmer-Wohnung liegt im Hochparterre eines charmanten Mehrfamilienhauses und besticht durch ihren praktischen Grundriss.
In der modernisierten Wohnung wurde in den Wohn- und Schlafräumen ein eleganter Designboden in Holzoptik verlegt, während Bad und WC mit schicken, grauen Fliesen ausgestattet sind...
Ausstattung
**** schicker Desingboden in Holzoptik
**** Küche kann vom Vormieter abgelöst werden
**** modernes Duschbad mit Doppelwaschbecken und Waschmaschinenanschluss
**** Gäste-WC
**** geräumige Diele
**** elektrische Rollläden
**** Fußbodenheizung
**** Kellerabteil
**** Fahrradunterstellmöglichkeit
****...
Weitere Informationen
Sonstiges
Für weitere Informationen oder einen Besichtigungstermin stehe ich gerne zur Verfügung.
Alle Angaben zu dieser Immobilie stammen vom Eigentümer. Wesoly Immobilien übernimmt daher keine Haftung für die Richtigkeit der Angaben. Insbesondere die Angaben zur Wohnfläche, zur Nutzfläche und zur Aufteilung der...
Anbieter der Immobilie

Online-ID: 2mx9j5h
Referenznummer: 2025-246
Finde Angebote wie dieses
Hier geht es zu unserem Impressum, den Allgemeinen Geschäftsbedingungen, den Hinweisen zum Datenschutz und nutzungsbasierter Online-Werbung.