
SYSTEMA Immobilien GbR
Herr Heiko Krause
036 ···
Nr. anzeigenPreise & Kosten
Provision für Käufer
Bitte beachte, das Angebot beinhaltet bei Vertragsabschluss die Zahlung einer Provision. Weitere Informationen erhältst Du vom Anbieter.
Lage
In unmittelbarer Nähe befinden sich das Otto-Dix Haus und die Marienkirche.
Entlang der vor der Haustür verlaufenden "Weißen Elster" befindet sich ein sehr beliebter Fahrrad- und Spazierweg, der sich in jeder Jahreszeit größter Beliebtheit erfreut. Auch Jogger und andere Freizeitsportler kommen auf ihre Kosten, denn der...
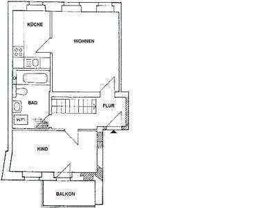
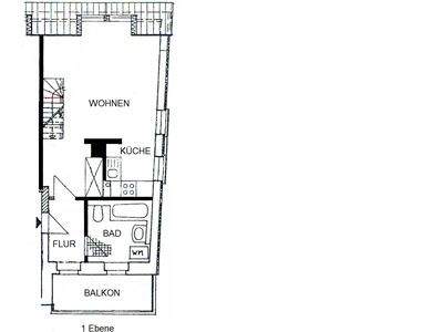
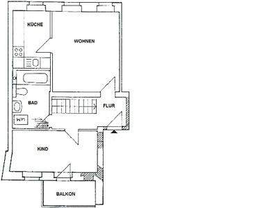
Die Wohnung
Wohnungslage
Erdgeschoss
Bezug
sofort
Wohnanlage
Details
Objektbeschreibung
Das Verkaufsobjekt befindet sich in guter Wohnlage im beliebten Stadtteil Gera-Untermhaus unterhalb vom Schloss Osterstein und am Fuße des Stadtwaldes. Das 1904 erbaute Wohnhaus wurde 1998 komplett saniert.
Weiterhin verfügt das Objekt über 6 Stellplätze im Hof. Alle 8 Wohnungen verfügen über einen Balkon bzw. Terrasse.
Ausstattung
Küchen mit Bodenfliesen und Fliesenspiegel
hell geflieste Bäder mit Badewanne, Waschmaschinenanschluss
Fenster: Kunststoff mit Wärmeschutzverglasung
Balkon
Kellerabteil
Klingel mit Wechselsprechanlage
Weitere Informationen
Sonstiges
Das Objekt verfügt über 8 Wohneinheiten. (Zwei 3-Raum Wohnungen und sechs 2-Raum Wohnungen). Die Gesamtwohnfläche beträgt 489,49 m². Die Pläne und Größenangaben beziehen sich auf die vom Eigentümer erhaltenen Unterlagen und sind demzufolge ohne Gewähr. Weiterhin gibt es noch 6 Stellplätze im Hof. Mieteinnahmen...
Anbieter der Immobilie
Online-ID: 2mx9n5g
Referenznummer: 860-V
Finde Angebote wie dieses
Hier geht es zu unserem Impressum, den Allgemeinen Geschäftsbedingungen, den Hinweisen zum Datenschutz und nutzungsbasierter Online-Werbung.