Version: 8.24.0Navigation ĂĽberspringen
1.269 €
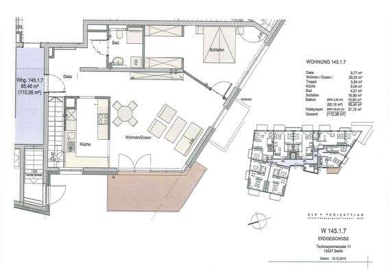
2 Zimmer  â€˘  110,4 m²  â€˘  EG  â€˘  frei ab sofort
Immowelt logo

Wohnung zur Miete
1.269 €
2 Zimmer  â€˘  110,4 m²  â€˘  EG  â€˘  frei ab sofort

2 Zimmer mit groĂźem Hobbyraum - Wohnen im GrĂĽnen

Objektbeschreibung Das viergeschossiges Energieeffizienshaus (Kfw70 Standard) ist ruhig gelegen.
In der Wohnanlage stehen (teilweise kostenpflichtig), eine Sauna, eine Bibliothek, ein Fitnessraum und ein gemeinschafts Fernseh-/Spielezimmer zur Nutzung zur VerfĂĽgung.
Der vorhandene Aufzug fährt bis in das Untergeschoss. Raumaufteilung Türschwellenlose, helle 2 Zimmer-Wohnung mit offenem Raumeindruck.Ein direkt über die Wohnung zur erreichender Hobbyraum ist in der angegebenen Fläche (anteilig) berücksichtigt. Einen zusätzlichen Kellerraum gibt es nicht.
Die Wohnung wird ohne EinbaukĂĽche und Laminatboden vermietet.

Merkmale

  • Bezug: ab sofort
  • Erdgeschoss
  • Personenaufzug
  • Terrasse
  • DSL-Anschluss
  • Bad mit Dusche
  • Fenster: Kunststoff

Grundrisse

Grundrisse
1 / 2

Realisiere Dein Projekt

Bausubstanz und Energie

Energieausweis

A
  • Baujahr2016
  • HaustypKfW 70
  • HeizungsartZentralheizung: FuĂźbodenheizung
  • EnergieträgerFernwärme
Immowelt logo

Mietkosten

Warmmiete
1.567,11 €
Kaltmiete
11,50 €/m²
1.269,14 €
Nebenkosten
165,54 €
Heizkosten
132,43 €
Kaution
Kaution keine, jedoch 1550,00 € in Form von Genossenschaftsanteilen

Lage

address-icon
Wittenau, Berlin (13437)
Der Anbieter hat die genaue Adresse nicht freigegeben
Das Objekt liegt in einer grĂĽnen, gewachsenen Wohnlage im Berliner Bezirk Reinickendorf. Die Umgebung besticht durch ihren alten Gebäudebestand, weitläufige GrĂĽnflächen und eine hervorragende Infrastruktur, die sowohl Ruhe als auch urbanes Leben vereint.

Umgebung & Infrastruktur

Das Objekt bietet eine ruhige und familienfreundliche Wohnlage mit vielen Naherholungsmöglichkeiten. In direkter Umgebung befinden sich:
• Der Nordgraben, ein idyllisches Naherholungsgebiet mit Spazierwegen, GrĂĽnflächen und Naturflächen.
• Mehrere Spielplätze und Parks, ideal fĂĽr Familien mit Kindern.
• Das historische Viertel Alt-Wittenau, das mit seinen charmanten Altbauten und kleinen Geschäften ein besonderes Flair bietet.
• Das Rathaus Reinickendorf, das neben Verwaltungsdienstleistungen auch regelmäßig kulturelle Veranstaltungen anbietet.
• Eine gute Auswahl an Restaurants und CafĂ©s, die von gemĂĽtlicher Berliner KĂĽche bis hin zu internationalen Spezialitäten reichen.
• Zahlreiche Einzelhandelsgeschäfte und Supermärkte, die eine optimale Nahversorgung garantieren.

Verkehrsanbindung

Die Objekt ist bestens an den öffentlichen Nahverkehr angebunden:
• U-Bahn: Die U8 (Rathaus Reinickendorf) ist schnell erreichbar und bietet eine direkte Verbindung in die Berliner Innenstadt (Gesundbrunnen, Alexanderplatz, Hermannplatz).
• S-Bahn: Der S-Bahnhof Wittenau (S1) sorgt fĂĽr eine schnelle Anbindung in Richtung Mitte und Brandenburg.
• Buslinien: Mehrere Buslinien, darunter 124, 220, 221 und 322 verbinden das Viertel mit den umliegenden Stadtteilen sowie wichtigen Knotenpunkten wie Tegel oder Wittenau.

Dank der grĂĽnen Lage, der guten Infrastruktur und der ausgezeichneten Verkehrsanbindungbietet das eine hohe Wohnqualität – ideal fĂĽr alle, die ruhiges Wohnen mit urbaner Nähe verbinden möchten.

Weitere Informationen

Besichtigungstermine Bitte vereinbaren Sie telefonisch einen Besichtigungstermin mit Frau Wolf unter 030 / 414 014 13 Stichworte Zustand: neuwertig, gepflegt Sonstiges/Wohnen: Hobbyraum Sonstiges: ISDN

Weitere Services

Lust auf eine Besichtigung?
Eine Frage zur Immobilie?
Nachricht hinzufĂĽgen
Mit der Nutzung der oben angegebenen Telefonnummer oder durch Klicken auf „Kontaktieren“ akzeptierst Du die Allgemeinen Nutzungsbedingungen, denen Du jederzeit widersprechen kannst. Weitere Informationen zum Datenschutz

Ăśber den Anbieter

Rathauspromenade 68, 13437 Berlin
partner badge
Partnerschaft
Frau Claudia WolfDein Kontakt
Online-ID: 2mxas5d
Referenznummer: 145.1.7
GEWIWO Berlin Wittenauer Wohnungsbaugenossenschaft eG
Bewertung: 5 von 5 Sternen
Nachricht hinzufĂĽgen
Mit der Nutzung der oben angegebenen Telefonnummer oder durch Klicken auf „Kontaktieren“ akzeptierst Du die Allgemeinen Nutzungsbedingungen, denen Du jederzeit widersprechen kannst. Weitere Informationen zum Datenschutz
Wie zufrieden bist du mit dieser Seite (nicht mit der Immobilie selbst)?