
Marko Künne Immobilien
034 ···
Nr. anzeigenPreise & Kosten
Provision für Käufer
provisionsfrei
Lage
Gohlis ist ein vornehmlich ruhiges Wohngebiet mit großbürgerlichen Flair. Das Rosental, eine Parklandschaft mitten in der Stadt, und der angrenzende Zoologische Garten, der Zoo der Zukunft, sind nicht weit entfernt - an einem sonnigen Tag lassen sich die Strecken sogar zu Fuß zurücklegen.
Der Stadtteil erweist sich als...
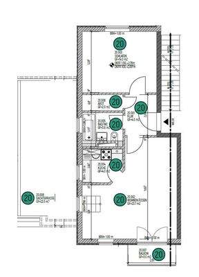
Die Wohnung
Wohnungslage
1. Geschoss
Derzeitige Nutzung
vermietet
Wohnanlage
Energie & Heizung
Warum sehe ich diese Anzeige? – Du siehst diese Anzeige basierend auf Ihrer Navigation auf unserer Website und den Suchkriterien, die du verwendet hast.
Energieausweistyp
Verbrauchsausweis
Gebäudetyp
Wohngebäude
Wesentliche Energieträger
Gas
Gültigkeit
09.08.2019 bis 08.08.2029
Effizienzklasse
E
Endenergieverbrauch
140,00 kWh/(m²·a)
Weitere Energiedaten
Energieträger
Gas
Details
Objektbeschreibung
Wäre Leben und Wohnen in Gohlis nicht schön? Wenn Sie diese Frage mit einem Ja beantworten können, sind Sie hier goldrichtig. In einer ruhigen und schönen Seitenstraße in Gohlis-Mitte liegt das 1995 errichtete und über die Jahre immer stets gepflegte Mehrfamilienhaus. Das Treppenhaus ist durch die freistehende Bauweise des...
Preisinformation
1 Stellplatz
Nettorendite Ist in %: 3,2
Nettorendite Soll in %: 3,2
Soll-Mieteinnahmen pro Jahr: 7.080,00 EUR
Ist-Mieteinnahmen pro Jahr: 7.080,00 EUR
Weitere Informationen
Stichworte
Anzahl Balkone: 1, Balkon-Terrassen-Fläche: 23,37 m², Bundesland: Sachsen, 4 Etagen, Wohnungsnr.: WE 20
Anbieter der Immobilie
Online-ID: 2mxbh55
Referenznummer: Kleiststr. 4 WE 20
Finde Angebote wie dieses
Hier geht es zu unserem Impressum, den Allgemeinen Geschäftsbedingungen, den Hinweisen zum Datenschutz und nutzungsbasierter Online-Werbung.