
Müller Merkle Immobilien GmbH
Frau Vanessa Lechner
Kontaktiere den Anbieter schriftlich, es ist keine Telefonnummer hinterlegt.
Preise & Kosten
Kaution
5085
Warum sehe ich diese Anzeige? – Du siehst diese Anzeige basierend auf Ihrer Navigation auf unserer Website und den Suchkriterien, die du verwendet hast.
Lage
Mitten in Bickenbach gelegen, bietet der Standort des QUARTIER AM JAGDSCHLOSS alle Vorzüge einer gewachsenen Infrastruktur. Einkaufsmöglichkeiten, Gastronomie und Freizeiteinrichtungen bieten alle Möglichkeiten täglicher Versorgung, ob Netto oder Bäckerei, Bistro, Eiscafé oder Restaurant - alles ist schnell zu erreichen und...
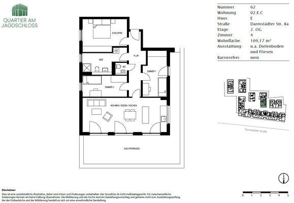
Die Wohnung
Kategorie
Penthouse
Wohnungslage
2. Geschoss
Bezug
ab sofort
Wohnanlage
Energie & Heizung
Warum sehe ich diese Anzeige? – Du siehst diese Anzeige basierend auf Ihrer Navigation auf unserer Website und den Suchkriterien, die du verwendet hast.
Energieausweistyp
Bedarfsausweis
Gebäudetyp
Wohngebäude
Baujahr laut Energieausweis
2023
Wesentliche Energieträger
Fernwärme
Gültigkeit
14.04.2021 bis 15.04.2031
Effizienzklasse
B
Endenergiebedarf
72,00 kWh/(m²·a)
Weitere Energiedaten
Energieträger
Fernwärme
Details
Objektbeschreibung
Mit 94 bis 174 Quadratmetern finden Sie im Quartier am Jagdschloss eine 4-Zimmer-Wohnung, die zu Ihnen passt! Die angebotene Wohnung verfügt über drei Schlafzimmer, einen Wohn- und Essbereich mit offener Küche, ein Tageslichtbad mit Dusche und ein separates WC. Eine große Dachterrasse lädt zum Verweilen ein.
Insgesamt...
Ausstattung
Alle Besonderheiten des Quartier am Jagdschloss auf einen Blick:
. Terrassen, Balkone, Loggien oder Dachterrassen zu jeder Wohnung
. Moderne Badezimmer mit Markenkeramik
. Fußbodenheizung und eletrische Handtuchheizkörper
. Eichenparkett, Dielenboden oder Vinyl-Designboden in den Wohnbereichen
...
Preisinformation
171 Stellplätze, Miete je: 100,00 EUR
Weitere Informationen
Sonstiges
Wir bitten Sie Terminanfragen über das Kontaktformular zu senden.
Bei den Bildern handelt es sich um unverbindliche Visualisierungen und Bilder der Musterwohnung. Gerne können Sie sich im Zuge einer Besichtigung der Musterwohnung selbst vom Projekt Quartier am Jagdschloss...
Anbieter der Immobilie
Müller Merkle Immobilien GmbH
Galileistraße 1, 69115 Heidelberg
Frau Vanessa Lechner
Dein Ansprechpartner
Kontaktiere den Anbieter schriftlich, es ist keine Telefonnummer hinterlegt.
Online-ID: 2mxbp5j
Referenznummer: QA-62#EpnLD
Finde Angebote wie dieses
Hier geht es zu unserem Impressum, den Allgemeinen Geschäftsbedingungen, den Hinweisen zum Datenschutz und nutzungsbasierter Online-Werbung.