

Finest Properties München Süd-Ost GmbH
Frau Dorothea Kammerscheid
+49 ···
Nr. anzeigenPreise & Kosten
Provision für Käufer
provisionsfrei
Lage
Die Wohnung liegt im grünen und exklusiven Stadtteil Harlaching / Menterschwaige, einer der begehrtesten Wohnlagen Münchens. Die Umgebung ist geprägt von stilvollen Einfamilienhäusern, großzügigen Gärten und viel Ruhe - ideal für Familien und anspruchsvolle Stadtbewohner.
Die Verkehrsanbindung ist hervorragend: Die...
Die Wohnung
Wohnungslage
Erdgeschoss
Wohnanlage
Energie & Heizung
Warum sehe ich diese Anzeige? – Du siehst diese Anzeige basierend auf Ihrer Navigation auf unserer Website und den Suchkriterien, die du verwendet hast.
Energieausweistyp
Verbrauchsausweis
Gebäudetyp
Wohngebäude
Wesentliche Energieträger
Gas
Gültigkeit
29.08.2018 bis 29.08.2028
Effizienzklasse
D
Endenergieverbrauch
103,00 kWh/(m²·a)
Weitere Energiedaten
Energieträger
Gas
Heizungsart
Zentralheizung
Details
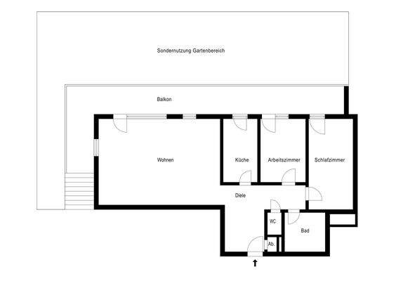
Objektbeschreibung
Diese großzügige 3-Zimmer-Wohnung mit ca. 126 m² Wohnfläche befindet sich im Hochparterre eines gepflegten Mehrfamilienhauses in Harlaching / Menterschwaige und vereint zeitgemäßen Wohnkomfort mit ruhiger, grüner Lage.
Das Haus wurde im Jahr 2023 umfassend modernisiert und präsentiert sich in einem hervorragenden...
Ausstattung
· Sehr gepflegte Wohnanlage
· Hochparterre mit Balkon und Garten-Zugang
· 3 helle Zimmer auf ca. 126 m² Wohnfläche
· ca. 44 m² großer Wohn- Essbereich
· 2 Schlaf- / Arbeitszimmer
· gepflegte Küche mit Zugang zum Balkon
· Gäste WC
· Abstellkammer
· Kellerabteil
· Haus und Außenanlagen 2023 umfassend...
Weitere Informationen
Stichworte
Anzahl der Schlafzimmer: 3, Anzahl der Badezimmer: 1, Anzahl Balkone: 1, Bundesland: Bayern, 3 Etagen, Distanz zum Flughafen: 28.94, Distanz zum Hauptbahnhof: 7.5, Distanz zum Bus: 0.36
Anbieter der Immobilie
Finest Properties München Süd-Ost GmbH
Wolfratshauserstrasse 181, 81479 München

Online-ID: 2mxc75n
Referenznummer: KFM1292
Finde Angebote wie dieses
Hier geht es zu unserem Impressum, den Allgemeinen Geschäftsbedingungen, den Hinweisen zum Datenschutz und nutzungsbasierter Online-Werbung.