team19 Immobilien GmbH

Herr Peter Tawadrous

Ungergasse: Sonnige Mietwohnung mit Parkblick wartet auf Sie - JETZT ANFRAGEN

€ 829,15
Gesamtmiete inkl. BK
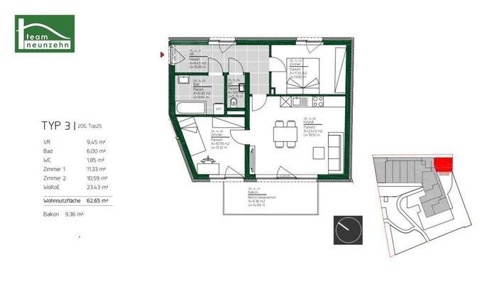
62,07 m²
Wohnfläche ca.
3
Zimmer

Der Anbieter dieses Objekts hat gegenüber der AVIV Germany GmbH als Betreiber dieses Online-Marktplatzes erklärt, nicht als Unternehmer im Sinne des § 1 KSchG zu handeln. Die im Verbraucherschutzrecht der Union verankerten Verbraucherrechte (insbesondere Informationspflichten und Rücktritts- bzw. Widerrufsrechte) finden auf den Vertrag zwischen dem Anbieter des Objekts und Ihnen (dem Interessenten) keine Anwendung.

Gewerblicher Anbieter

Der Anbieter dieses Objekts hat gegenüber der AVIV Germany GmbH als Betreiber dieses Online-Marktplatzes erklärt, als Unternehmer im Sinne des § 1 KSchG zu handeln.

AdresseUngergasse 39
8020 Graz 
(Gries)
Auf Karte ansehen

Preise & Kosten

Gesamtmiete

inkl. Betriebskosten

€ 829,15
Nettokaltmiete € 598,71 Betriebskosten € 155,06

Kaution

3 Bruttomonatsmieten

Lage

Grazer Hauptbahnhof, Citypark, Lendplatz, Steinfeldgasse, Eggenberger Gürtel

Die Wohnung

Wohnungslage

2. Geschoss

Bezug

ab sofort

  • Bad mit Wanne
  • Balkon
  • barrierefrei
  • Böden: Fliesenboden, Parkett
  • Ausstattung: neuwertig

Wohnanlage

  • Baujahr: 2019
  • Zustand: Neubau
  • Personenaufzug

Energie & Heizung

Heizwärmebedarf (HWB)

A

24,00 kWh/(m²·a)

Gesamtenergieeffizienz (fGEE)

A

0,78

Weitere Energiedaten

Energieträger

Fernwärme

Heizungsart

Fußbodenheizung

Details

Objektbeschreibung

Ungergasse 39 - Willkommen im wunderschönen Bezirk Gries!

Diese sonnigen Wohnungen stehen Ihnen jetzt zur Verfügung und überzeugen durch Ihre hervorragende Verkehrsanbindungen. Mit der Bus- oder Straßenbahn-Linie können Sie bequem zum nahegelegenen Bahnhof fahren.

Außerdem liegt die Immobilie in unmittelbarer...

Mehr anzeigen

Preisinformation

Nettokaltmiete: 598,71 EUR

Weitere Informationen

Stichworte
Tiefgarage vorhanden, Süd-West-Balkon/Terrasse, Fahrradraum, Nutzfläche: 72,61 m², Gesamtfläche: 72,01 m², Freifläche: 9,36 m², Anzahl der Badezimmer: 1, Anzahl der separaten WCs: 1, Anzahl Balkone: 1, Balkon-Terrassen-Fläche: 9,36 m², Bundesland: Steiermark, Wohnungsnr.: 25

Anbieter der Immobilie

Partner

team19 Immobilien GmbH

im Durchschnitt  4,20  Sterne
(bei 2 Bewertungen)

Handelskai 94-96/44. Stock, 1200 BRIGITTENAU

user

Herr Peter Tawadrous

Dein Ansprechpartner

Anbieter-Website Anbieter-Profil Anbieter-Impressum

Online-ID: 2mxcl5f

Referenznummer: OBGC20251124133005243b70c417224

Finde Angebote wie dieses

imageimageimage

Hier geht es zu unserem Impressum, den Allgemeinen Geschäftsbedingungen, den Hinweisen zum Datenschutz und nutzungsbasierter Online-Werbung.