
ohne-makler.net - Immobilien selbst vermarkten
Privat von Soheil Mottaghi
Kontaktiere den Anbieter schriftlich, es ist keine Telefonnummer hinterlegt.
Preise & Kosten
Kaution
1.800,00
Warum sehe ich diese Anzeige? – Du siehst diese Anzeige basierend auf Ihrer Navigation auf unserer Website und den Suchkriterien, die du verwendet hast.
Lage
Das Haus wurde in einem beliebten Wohngebiet, nähe der Leonberger Altstadt, 1982 erbaut und befindet sich in einem gepflegten guten Zustand.
Infrastruktur (im Umkreis von 5 km):
Apotheke, Allgemeinmediziner, Kindergarten, Grundschule, Realschule, Gymnasium, Öffentliche Verkehrsmittel
Die Wohnung
Wohnungslage
2. Geschoss (Dachgeschoss)
Bezug
01.02.2026
Wohnanlage
Energie & Heizung
Warum sehe ich diese Anzeige? – Du siehst diese Anzeige basierend auf Ihrer Navigation auf unserer Website und den Suchkriterien, die du verwendet hast.
Energieausweistyp
Verbrauchsausweis
Gebäudetyp
Wohngebäude
Effizienzklasse
D
Endenergieverbrauch
125,00 kWh/(m²·a)
Weitere Energiedaten
Energieträger
Gas
Heizungsart
Zentralheizung
Details
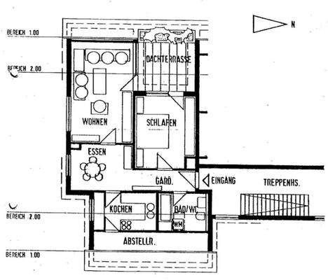
Objektbeschreibung
Die gepflegte 2,5 Zimmer Wohnung steht im Dachgeschoss eines 2 stöckigen
hübschen Mehrfamilienhauses.
Das Wohnzimmer ist durch mehrere Fenster hell und freundlich. Von hier aus gelangen Sie auf die sonnige West Dachterrasse mit ihrer herrlichen Aussicht bis nach Höfingen. Für Bepflanzungen gibt es auch genügend Platz...
Ausstattung
Keller, Dachterrasse, Vollbad, Einbauküche, Parkett, Fliesen
Preisinformation
1 Tiefgaragenstellplatz, Miete: 50,00 EUR
Nettokaltmiete: 895,00 EUR
Weitere Informationen
Sonstiges
Heizungsart: Zentralheizung
Energieträger: Gas
Makleranfragen nicht erwünscht. Nach § 7 UWG sind unaufgeforderte Kontaktaufnahmen durch Makler ohne ausdrückliche Einwilligung des Empfängers verboten!
ohne-makler (OM) ist weder Anbieter noch Vermittler der Immobilie. OM betreibt eine Plattform...
Anbieter der Immobilie
ohne-makler.net - Immobilien selbst vermarkten
Humboldtstr. 25 A, 21509 Glinde
Privat von Soheil Mottaghi
Dein Ansprechpartner
Kontaktiere den Anbieter schriftlich, es ist keine Telefonnummer hinterlegt.
Online-ID: 2mxe55w
Referenznummer: 312138
Finde Angebote wie dieses
Hier geht es zu unserem Impressum, den Allgemeinen Geschäftsbedingungen, den Hinweisen zum Datenschutz und nutzungsbasierter Online-Werbung.