
N1 Immobilien Management OHG
Firma N1 Immobilien Management OHG ...von Anfang an ein gutes Gefühl!
004 ···
Nr. anzeigenPreise & Kosten
Provision für Käufer
3,57% inkl. MwSt.
Lage
Der Donnersbergkreis ist eine Gebietskörperschaft in der Region Pfalz des Landes Rheinland-Pfalz. Sitz der Kreisverwaltung ist Kirchheimbolanden, die bevölkerungsreichste Kommune ist mit weniger als 10.000 Einwohnern die Stadt Eisenberg.
Der Donnersbergkreis mit seinem Verwaltungssitz Kirchheimbolanden liegt in der...
Das Haus
Baujahr
1920
Energie & Heizung
Warum sehe ich diese Anzeige? – Du siehst diese Anzeige basierend auf Ihrer Navigation auf unserer Website und den Suchkriterien, die du verwendet hast.
Energieausweis: für diesen Gebäudetyp nicht notwendig
Weitere Energiedaten
Energieträger
Gas
Heizungsart
Zentralheizung
Details
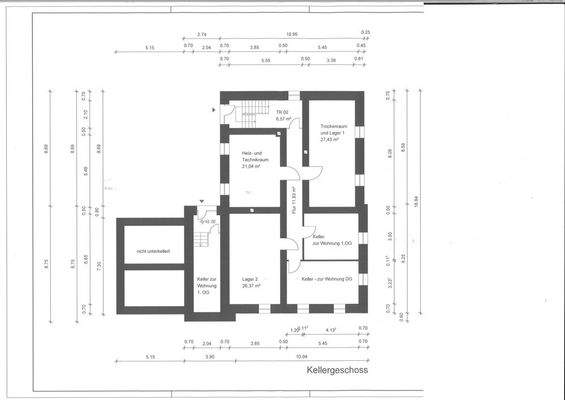
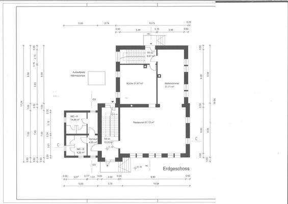
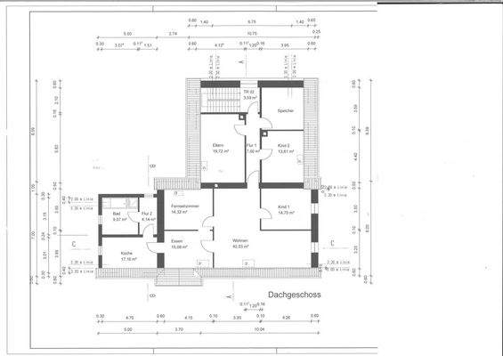
Objektbeschreibung
Wohn- und Geschäftshaus mit 2 Wohneinheiten und einem familiär geführten, sehr gut gehenden Restaurant nahe des Nordpfälzer Berglandes.
Gelegen ist diese Immobilie auf einem 2.275 Quadratmeter großen Grundstück und verfügt zudem über eine Terrasse mit Außensitzplätzen, 1 Garage sowie zahlreiche Parkplätze.
Im...
Ausstattung
N1 Immobilienmanagement ...von Anfang an ein gutes Gefühl!
N1 Immobilienmanagement hat seine bisher ohnehin schon sehr breit gefächerte Angebotspalette um einen weiteren exklusiven Service erweitert. In Zeiten immer weiter steigender Energiepreise, exorbitanter Teuerungsrate von Baumaterialen, Handwerkermangel und damit...
Preisinformation
17 Stellplätze
1 Garagenstellplatz
Weitere Informationen
Sonstiges
Wir als Immobiliendienstleister sind nach dem Geldwäschegesetz verpflichtet die Identität unserer Kunden festzustellen und zu überprüfen. Diese Verpflichtung haben Immobilienmakler vor dem mündlichen oder schriftlichen Maklervertrag zu erfüllen. Um zu verhindern, dass Gewinne aus Straftaten in Umlauf gebracht...
Anbieter der Immobilie
N1 Immobilien Management OHG
Schneiderstraße 12, 67655 Kaiserslautern
Firma N1 Immobilien Management OHG ...von Anfang an ein gutes Gefühl!
Dein Ansprechpartner
004 ···
Nr. anzeigenOnline-ID: 2mxee52
Referenznummer: 23-ON-36
Finde Angebote wie dieses
Hier geht es zu unserem Impressum, den Allgemeinen Geschäftsbedingungen, den Hinweisen zum Datenschutz und nutzungsbasierter Online-Werbung.