

Gruttmann Immobilien GmbH
Frau Britta C. Gruttmann
030 ···
Nr. anzeigenPreise & Kosten
Provision für Käufer
Gemäß der gesetzlichen Regelung zur Teilung der Maklercourtage beträgt die Provision 3,57% des Kaufpreises inklusive 19% MwSt. jeweils in gleicher Höhe für die Verkäuferseite sowie für die Käuferseite.
Abschreibung/Anlage
Denkmalschutz-Afa
Lage
Die Immobilie befindet sich im beliebten Berliner Stadtteil Friedenau in einer ruhigen Seitenstraße.
Der Stadtteil Friedenau wurde ursprünglich in der Kaiserzeit als Landhauskolonie angelegt. Heute überzeugt er durch sanierte Altbauten mit repräsentativen Fassaden und mit ihren kleine, grünen Vorgärten. Das Zentrum von...
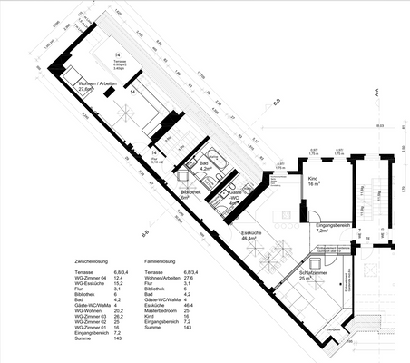
Die Wohnung
Wohnungslage
4. Geschoss (Dachgeschoss)
Derzeitige Nutzung
vermietet, frei
Wohnanlage
Energie & Heizung
Warum sehe ich diese Anzeige? – Du siehst diese Anzeige basierend auf Ihrer Navigation auf unserer Website und den Suchkriterien, die du verwendet hast.
Energieausweis: für diesen Gebäudetyp nicht notwendig
Details
Objektbeschreibung
Das 1893 errichtete Mehrfamilienhaus ist in ein Vorderhaus und einen Seitenflügel unterteilt und umfasst insgesamt 15 Wohneinheiten.Das repräsentative Gebäude besticht durch seine eindrucksvolle Klinker- und Stuckfassade und steht unter Denkmalschutz.
Die Wohnung befindet sich im Dachgeschoss des Vorderhauses und...
Anbieter der Immobilie

Online-ID: 2mxel5x
Referenznummer: VK-25405_c
Finde Angebote wie dieses
Hier geht es zu unserem Impressum, den Allgemeinen Geschäftsbedingungen, den Hinweisen zum Datenschutz und nutzungsbasierter Online-Werbung.