

KCI Vertriebs GmbH
Firma Eser Kazak
+49 ···
Nr. anzeigenPreise & Kosten
Provision für Käufer
3,57% inkl. MwSt.
Lage
Die Ochshäuser Dorfstraße 13 liegt im begehrten Lohfelden-Ochshausen - einem Wohngebiet, das Ruhe, Infrastruktur und Lebensqualität harmonisch vereint. Die Dachgeschosswohnung profitiert ganz besonders von der erhöhten Lage innerhalb des Hauses: Sie bietet maximale Privatsphäre, weniger Geräuschentwicklung und ein besonderes...
Die Wohnung
Wohnungslage
2. Geschoss (Dachgeschoss)
Bezug
sofort
Derzeitige Nutzung
vermietet
Wohnanlage
Energie & Heizung
Warum sehe ich diese Anzeige? – Du siehst diese Anzeige basierend auf Ihrer Navigation auf unserer Website und den Suchkriterien, die du verwendet hast.
Energieausweistyp
Bedarfsausweis
Gebäudetyp
Wohngebäude
Wesentliche Energieträger
GAS
Gültigkeit
bis 01.10.2035
Endenergiebedarf
205,00 kWh/(m²·a)
Weitere Energiedaten
Energieträger
Gas
Heizungsart
Fußbodenheizung
Details
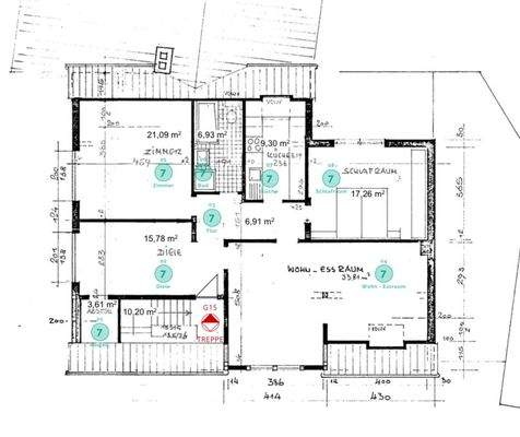
Objektbeschreibung
Diese außergewöhnliche Dachgeschosswohnung in der Ochshäuser Dorfstraße 13 präsentiert sich als ein Wohnjuwel, das durch seine Großzügigkeit, klare Raumstruktur und die Flexibilität des Grundrisses überzeugt. Mit einer Bruttogrundfläche von rund 115 m² bietet diese Wohnung ein beeindruckendes Raumgefühl, das sich in dieser...
Ausstattung
Die Ausstattung der Dachgeschosswohnung bietet viel Potenzial - sowohl für Eigennutzer als auch für Investoren, die eine flexible und individuell gestaltbare Wohnfläche schätzen. Die großzügige Raumstruktur erlaubt moderne Einrichtungskonzepte. Die vorhandenen Räume sind bestens geschnitten, sodass eine klare...
Weitere Informationen
Sonstiges
Der mögliche Ausbau des Spitzbodens ist ein einzigartiger Vorteil, der langfristig eine erhebliche Wertsteigerung ermöglicht. Die Teilungserklärung erlaubt diese Maßnahme ausdrücklich, sodass der rechtliche Rahmen bereits geschaffen ist.
Die Wohnung befindet sich in einem massiv erbauten Mehrfamilienhaus...
Anbieter der Immobilie

Online-ID: 2mxgy5d
Referenznummer: KCI145125
Finde Angebote wie dieses
Hier geht es zu unserem Impressum, den Allgemeinen Geschäftsbedingungen, den Hinweisen zum Datenschutz und nutzungsbasierter Online-Werbung.