
Heming Immobilien
Frau Manuela Altheim
004 ···
Nr. anzeigenPreise & Kosten
Provision für Käufer
3,57 % vom Kaufpreis inkl. gesetzlicher MwSt. inkl. MwSt.
Lage
Der idyllische Ort Köngernheim liegt, umgeben von Weinbergen, mitten im Herzen von Rheinhessen. Er ist eingegliedert in die Verbandsgemeinde Nierstein-Oppenheim. Die günstige Lage zum Rhein-Main-Gebiet macht den Ort gerade für Berufspendler aus Mainz (ca. 27 km), Wiesbaden (41 km) und Frankfurt (57 km) so attraktiv. Auf der...
Das Haus
Kategorie
Einfamilienhaus
Baujahr
1886
Bezug
nach Vereinbarung
Energie & Heizung
Warum sehe ich diese Anzeige? – Du siehst diese Anzeige basierend auf Ihrer Navigation auf unserer Website und den Suchkriterien, die du verwendet hast.
Energieausweistyp
Bedarfsausweis
Gebäudetyp
Wohngebäude
Baujahr laut Energieausweis
1886
Wesentliche Energieträger
GAS
Gültigkeit
bis 13.06.2035
Endenergiebedarf
302,50 kWh/(m²·a)
Weitere Energiedaten
Energieträger
Gas, Holz
Heizungsart
offener Kamin, Zentralheizung
Details
Objektbeschreibung
Schweren Herzens wird diese liebevolle ehemalige Schreinerei mit Wohnhaus in Köngernheim verkauft und kann zeitnah übergeben werden.
Das Haupthaus aus ca. Baujahr 1886 steht nicht unter Denkmalschutz. Der Anbau ist aus den 60er.
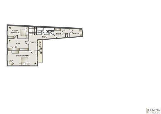
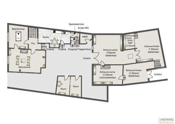
EG Haupthaus: Wohnzimmer, Billardzimmer
EG Anbau: Küche, Speisekammer (als...
Ausstattung
Alle gemachten Angaben sind Angabe des Eigentümers
- Ein Teil der Räume im EG/OG sind bereits saniert
- kein Denkmalschutz
- 700 m² Grundstück (2 Flurstücke) kein Garten
- ca. Bj. 2000 Gasheizung mit Warmwasser
- ca. Bj. 2000 Solarunterstützung des Warmwasser
- Wohnzimmer mit Kamin/Kachelofen (mit...
Weitere Informationen
Sonstiges
Keine Immobilie ist wie die andere und jede hat Ihre eigene Geschichte.
Aus diesem Grund unterstützen wir Sie gerne in allen Fragen rund um den Kauf Ihrer Immobilie und übernehmen selbstverständlich alle organisatorischen Aufgaben, die eine Vermarktung mit sich bringt. Unser kompetentes Team verfügt über...
Anbieter der Immobilie
Heming Immobilien
Friedrich-Ebert-Str. 48-50, 55286 Wörrstadt
Online-ID: 2mxjf52
Referenznummer: 5954
Finde Angebote wie dieses
Hier geht es zu unserem Impressum, den Allgemeinen Geschäftsbedingungen, den Hinweisen zum Datenschutz und nutzungsbasierter Online-Werbung.