Version: 8.24.0Navigation überspringen
875.000 €
7 Zimmer  •  125 m² Bürofläche
Immowelt logo

Bürogebäude zum Kauf
875000 €
7 Zimmer  •  125 m² Bürofläche

Einfamilienhaus mit gewerblicher Nutzung in zentraler Lage in Falkensee

Zum Verkauf steht ein im Jahr 2013 hochwertig errichtetes Einfamilienhaus mit integrierter Gewerbeeinheit in einem ausgewiesenen Mischgebiet. Die gewerbliche Nutzung ist gemäß Bebauungsplan erforderlich und basiert auf früheren Immissionsschutzanforderungen, die sich an einem ehemals gegenüberliegenden Steinmetzbetrieb orientierten. Dieser Betrieb ist mittlerweile nicht mehr vorhanden. Daher besteht grundsätzlich die Möglichkeit, eine Befreiung von der Gewerbenutzung zu beantragen.

Das Objekt verbindet modernes Wohnen mit gewerblicher Nutzung und eignet sich ideal für Selbstständige, Freiberufler oder Investoren.

Architektur & Grundstück

Das Haus überzeugt durch eine sehr stilvolle, moderne Architektur. Die Fassade ist teilweise mit Klinker gestaltet und wird durch eine umlaufende Attika ergänzt, was dem Gebäude eine klare, zeitlose Linienführung verleiht.

Auf dem großzügigen Grundstück stehen mindestens sieben Stellplätze zur Verfügung. Auf der gegenüberliegenden Seite des Hauses erstreckt sich eine große Terrasse mit angrenzendem, sehr grün und gepflegt angelegtem Garten. Im hinteren Bereich des Grundstücks befindet sich ein separates Nebengebäude, das als Abstellraum für Gartengeräte und Holz genutzt wird.

Gebäude & Aufteilung
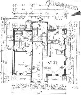
Erdgeschoss - Wohnen

Das Erdgeschoss wird zu Wohnzwecken genutzt und ist über ein großzügiges, abgetrenntes Treppenhaus erreichbar. Dieses beeindruckt durch eine dekorative Gestaltung mit einem steinernen Springbrunnen und schafft bereits beim Betreten ein besonderes Ambiente.

Von hier aus gelangt man in den Flur der Wohnung, der in einen großzügigen Wohn- und Essbereich mit ca. 34 m² führt. Ein moderner, dreiseitiger Kamin bildet das zentrale Gestaltungselement und sorgt für eine angenehme Wohnatmosphäre.

Links schließt sich die offen gestaltete Küche an, ausgestattet mit einer Kochinsel und hochwertigen Einbaugeräten, darunter ein zweietagiger Weinkühlschrank. In der rückwärtigen Küchenwand befindet sich eine nahezu unsichtbar integrierte Tür in Wandfarbe, die in den Hauswirtschaftsraum führt. Hier stehen Flächen für Haustechnik, Waschmaschine sowie Abstellmöglichkeiten zur Verfügung.

Rechts vom Flur befindet sich der private Bereich mit Schlafzimmer, einem Badezimmer mit Badewanne sowie einem separaten Gäste-WC.

Obergeschoss - Gewerbe

Das Obergeschoss ist derzeit gewerblich als Büroeinheit genutzt. Die Fläche besteht aus fünf Büroräumen, einem Badezimmer mit Dusche sowie einer kleinen Küche mit Einbauten. Zusätzlich verfügt das Obergeschoss über einen Balkon, der die Büroeinheit ergänzt und für eine angenehme Aufenthaltsqualität sorgt.

Merkmale

  • Bezug: nach Vereinbarung
  • vermietet
  • Einbauküche
  • 7 Stellplätze: 7 Außen-Stellplätze
  • Raumaufteilung flexibel
Ausstattung

Teilweise Klinkerfassade

Umlaufende Attika

Geflieste Böden im Erdgeschoss

Dreifach verglaste Fenster

Elektrische Außenrollläden

Moderner dreiseitiger Kamin

Hochwertige Einbauküche mit Kochinsel

Großzügiges, repräsentatives Treppenhaus

Balkon im Obergeschoss

Besonderheiten

Mischgebiet mit kombinierter Wohn- und Gewerbenutzung

Perspektive auf Befreiung oder Änderung der Gewerbenutzung

Großzügiges Grundstück mit vielen Stellplätzen

Stilvolle Architektur und hochwertige Ausstattung

Grundrisse

Grundrisse
1 / 2

Realisiere Dein Projekt

Bausubstanz und Energie

Energieausweis

Endenergiebedarf (Wärme)

  • Baujahr2013
  • Zustand der Immobilieneuwertig
  • HeizungsartFußbodenheizung
  • EnergieträgerGas
Immowelt logo

Preisdetails

Kaufpreis
875000 €
Provision für Käufer
3,57% vom Kaufpreis inkl. MwSt.
Weitere Preisinformationen
7 Stellplätze
Geschätzte Gesamtkosten
906.238 €1
Kaufpreis
875.000 €
Provision für Käufer (3,57%)
31.238 €
1Der angezeigte Wert ist eine automatisch berechnete Schätzung von immowelt.
2Bei den Angaben handelt es sich um ortsübliche Werte. Individuelle Kosten können abweichen.

Lage

address-icon
Falkensee (14612)
Der Anbieter hat die genaue Adresse nicht freigegeben
Die Immobilie befindet sich in attraktiver Lage von Falkensee, einer gefragten Stadt im Landkreis Havelland, direkt an der westlichen Stadtgrenze von Berlin. Falkensee vereint die Vorteile stadtnaher Lage mit einem hohen Maß an Lebensqualität, viel Grün und einer gewachsenen Infrastruktur - ein idealer Standort sowohl für Eigennutzer als auch für Gewerbetreibende.

Der Straße liegt in einem ausgewiesenen Mischgebiet, das Wohnen und gewerbliche Nutzung in harmonischer Weise verbindet. Die Umgebung ist geprägt von einer aufgelockerten Bebauung mit Wohnhäusern, Büro- und Dienstleistungsnutzungen. Dies schafft ein ruhiges, zugleich aber funktionales Umfeld, das sich hervorragend für Arbeiten und Wohnen unter einem Dach eignet.

Die Verkehrsanbindung ist sehr gut: Über die nahegelegenen Hauptverkehrsachsen sowie die Bundesstraße B5 ist Berlin in kurzer Zeit erreichbar. Der Regional- und S-Bahn-Anschluss Falkensee ermöglicht zudem eine schnelle und komfortable Verbindung in die Berliner Innenstadt sowie in die umliegenden Regionen. Für Gewerbetreibende bietet die Lage damit eine ausgezeichnete Erreichbarkeit für Kunden, Mitarbeiter und Geschäftspartner.

Einkaufsmöglichkeiten für den täglichen Bedarf, gastronomische Angebote, Schulen, Kitas sowie medizinische Versorgung befinden sich in kurzer Distanz und sind schnell erreichbar. Gleichzeitig laden zahlreiche Grünflächen, Wälder und Naherholungsgebiete in der Umgebung zu Freizeitaktivitäten und Erholung ein.

Für Selbstnutzer bietet die Lage eine hohe Wohnqualität mit urbaner Nähe und naturnahem Umfeld. Gewerbetreibende profitieren von der guten Sichtbarkeit, der verkehrsgünstigen Lage sowie der Möglichkeit, repräsentative Büro- oder Dienstleistungsflächen in einem dynamisch wachsenden Standort zu nutzen.

Weitere Informationen

Stichworte Stellplatz vorhanden, Gesamtfläche: 275,00 m², Anzahl der separaten WCs: 3, 2 Etagen, Lage im Mischgebiet

Weitere Services

Lust auf eine Besichtigung?
Eine Frage zur Immobilie?
Nachricht hinzufügen
Mit der Nutzung der oben angegebenen Telefonnummer oder durch Klicken auf „Kontaktieren“ akzeptierst Du die Allgemeinen Nutzungsbedingungen, denen Du jederzeit widersprechen kannst. Weitere Informationen zum Datenschutz

Über den Anbieter

Havelgrund GmbH
Havelgrund GmbHMaklerbüro
Bahnhofstraße 50a, 14612 Falkensee
partner badge
Partnerschaft
Herr Michael MaaseDein Kontakt
Online-ID: 2mxm45t
Referenznummer: 127589416#nM6Hn
Havelgrund GmbH
Havelgrund GmbH
Bewertung: 4,2 von 5 Sternen
Nachricht hinzufügen
Mit der Nutzung der oben angegebenen Telefonnummer oder durch Klicken auf „Kontaktieren“ akzeptierst Du die Allgemeinen Nutzungsbedingungen, denen Du jederzeit widersprechen kannst. Weitere Informationen zum Datenschutz
Wie zufrieden bist du mit dieser Seite (nicht mit der Immobilie selbst)?