

MyReal Immobilien GmbH
Frau Zsuzsanna Bodola
+43 ···
Nr. anzeigenPreise & Kosten
Provision für Käufer
3% zzgl. MwSt.
Lage
Lage und Infrastruktur
Die Liegenschaft befindet sich in 2763 Pernitz, einer beliebten Wohngemeinde im Bezirk Wiener Neustadt-Land, eingebettet in das malerische Piestingtal.
Hier genießen Sie ländliche Ruhe mit ausgezeichneter Anbindung an die umliegenden Regionen.
Bildung &...
Das Haus
Kategorie
Einfamilienhaus
Bezug
sofort
Energie & Heizung
Warum sehe ich diese Anzeige? – Du siehst diese Anzeige basierend auf Ihrer Navigation auf unserer Website und den Suchkriterien, die du verwendet hast.
Weitere Energiedaten
Energieträger
Gas
Heizungsart
Zentralheizung
Details
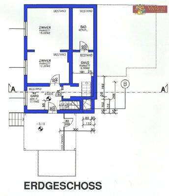
Objektbeschreibung
Willkommen in Pernitz, einem charmanten Ort am Tor zum Piestingtal, wo Idylle, Natur und Lebensqualität harmonisch miteinander verschmelzen.
Am sonnigen Ortsrand, in wunderbar ruhiger und dennoch zentral erreichbarer Lage, präsentiert sich diese einzigartige Liegenschaft auf einem großzügigen Grundstück von 639 m² - ein...
Ausstattung
Ausstattung und Besonderheiten
2004 umfassend saniert (Technik, Elektrik, Wasser, Heizung, Oberflächen)
Bodenbeläge aus Massivparkett und edlen Fliesen
Holzstiege mit dekorativem Charakter,
Sauna und Wellnessbereich im Erdgeschoss,
Wintergarten mit Panoramaverglasung
, große...
Weitere Informationen
Sonstiges
***ACHTUNG*** Unbedingt beachten !!
Aufgrund der Vereinbarung mit den Immobilieneigentümern sind wir dazu verpflichtet die vollständigen Adressdaten eines Interessenten zu hinterlegen, bevor wir detaillierte Objektinformationen weitergeben dürfen.
Bitte teilen Sie uns daher Ihren Namen, Ihre derzeitige...
Anbieter der Immobilie
MyReal Immobilien GmbH
Anton Rauch Strasse 6, 2525 GÜNSELSDORF

Online-ID: 2mxnk5y
Referenznummer: 4673
Finde Angebote wie dieses
Günstige Immobilienfinanzierung einfach online berechnen
Persönliches Angebot berechnenWarum sehe ich diese Werbung? – Du siehst diese Werbung basierend auf Deiner Navigation auf unserer Website und der von Dir verwendeten Suchkriterien.
Diese Werbung wird bezahlt von durchblicker
Werbung melden
Hier geht es zu unserem Impressum, den Allgemeinen Geschäftsbedingungen, den Hinweisen zum Datenschutz und nutzungsbasierter Online-Werbung.