

Spiegelfeld Immobilien GmbH
Frau Sabrina Ritter
+43 ···
Nr. anzeigenPreise & Kosten
inkl. Betriebskosten
Provision für Mieter
Gemäß Erstauftraggeberprinzip bezahlt der Abgeber die Provision.
Warum sehe ich diese Anzeige? – Du siehst diese Anzeige basierend auf Ihrer Navigation auf unserer Website und den Suchkriterien, die du verwendet hast.
Lage
Gonzagagasse
Die Wohnung
Wohnungslage
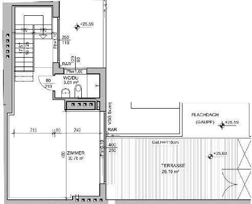
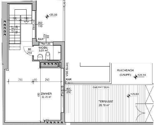
1. Geschoss (Dachgeschoss)
Bezug
ab sofort
Wohnanlage
Energie & Heizung
Warum sehe ich diese Anzeige? – Du siehst diese Anzeige basierend auf Ihrer Navigation auf unserer Website und den Suchkriterien, die du verwendet hast.
Heizwärmebedarf (HWB)
72,40 kWh/(m²·a)
Gesamtenergieeffizienz (fGEE)
1,56
Weitere Energiedaten
Energieträger
Fernwärme
Heizungsart
Fußbodenheizung
Details
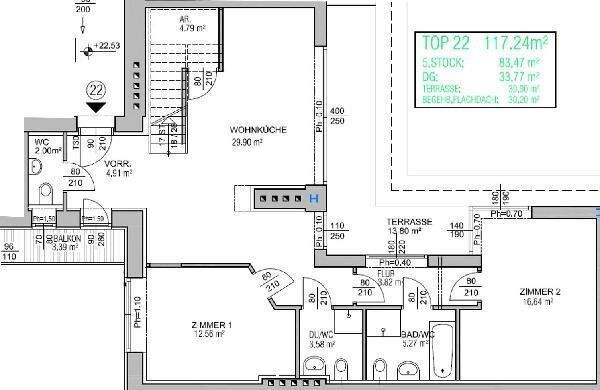
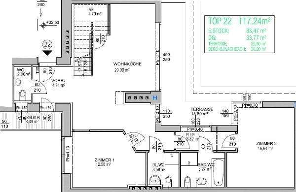
Objektbeschreibung
In an excellent location in the 1st district, not far from the stock exchange and Rudolfsplatz, the attic of a stylish old building was renovated to a high standard in 2010. Particularly noteworthy is the well-thought-out floor plan of the apartment, which completely avoids sloping ceilings and thus conveys a spacious...
Preisinformation
Nettokaltmiete: 2.593,72 EUR
Weitere Informationen
Sonstiges
Lageplan Nähe - https://www.wien.gv.at/stadtplan/grafik.aspx?lang=de-AT&bookmark=44hnRvk7NkaT41BEsQGxQ-c-a5R5lmRHGmmkeu25v6MR8sgSldDPoK
Stichworte
Anzahl der Badezimmer: 3, Anzahl der separaten WCs: 4, Anzahl Balkone: 1, Anzahl Terrassen: 3, Balkon-Terrassen-Fläche: 43,00 m², Bundesland: Wien, 2...
Anbieter der Immobilie

Spiegelfeld Immobilien GmbH
Stubenring 20, 1010 WIEN

Online-ID: 2mxnt5j
Referenznummer: OBGC20251201164123149f0b75ff2c8
Finde Angebote wie dieses
Hier geht es zu unserem Impressum, den Allgemeinen Geschäftsbedingungen, den Hinweisen zum Datenschutz und nutzungsbasierter Online-Werbung.