
Atlas Immobilienservice GmbH
Herr Marc Frings
004 ···
Nr. anzeigenPreise & Kosten
Provision für Käufer
5,95 inkl. MwSt.
Lage
Neuerbe Erfurt
Das Neuerbe besticht durch seine zentrale Lage in der charmanten Stadt Erfurt. Umgeben von historischen Gebäuden und malerischen Gassen, genießen Sie hier eine harmonische Verbindung aus urbanem Leben und traditionellem Flair. Die hervorragende Verkehrsanbindung ermöglicht schnelle Erreichbarkeit des...
Das Renditeobjekt
Kategorie
Mehrfamilienhaus
Baujahr
1900
Frei ab
vermietet
Energie & Heizung
Warum sehe ich diese Anzeige? – Du siehst diese Anzeige basierend auf Ihrer Navigation auf unserer Website und den Suchkriterien, die du verwendet hast.
Energieausweistyp
Verbrauchsausweis
Gebäudetyp
Wohngebäude
Baujahr laut Energieausweis
2014
Wesentliche Energieträger
FERN
Gültigkeit
bis 15.06.2032
Effizienzklasse
C
Endenergieverbrauch
98,00 kWh/(m²·a)
Weitere Energiedaten
Energieträger
Fernwärme
Details
Objektbeschreibung
In der zentralen Lage des Neuerbe Erfurt präsentieren wir Ihnen zwei hervorragend gelegene Mehrfamilienhäuser, welche aktuell als Studentenhäuser genutzt werden.
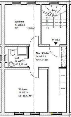
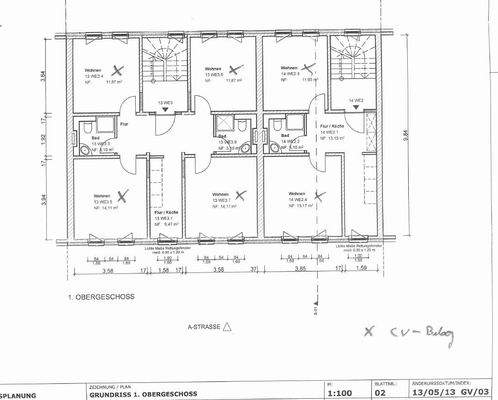
Haus 13 bietet eine ausgewogene Wohnstruktur und ist optimal auf die Bedürfnisse von Studenten zugeschnitten. Im Erdgeschoss befinden sich zwei Apartments...
Ausstattung
Die Objekte wurde 2013/2014 vollumfänglich saniert. 2024 sowie 2025 erfolgen Renovierungen sowie der Einbau eines neuen Servers.
Die Instandhaltung wurde stetig durchgeführt.
Haus 13:
Erdgeschoss:
2 moderne Apartments mit 2 Zimmern, Einbauküche sowie innenliegenden Duschbädern
1. OG:
Moderne Einheit mit...
Weitere Informationen
Sonstiges
.
Stichworte
Wohnfläche: 427,00 m², Anzahl der Schlafzimmer: 22, Anzahl der Badezimmer: 8, Anzahl der separaten WCs: 3, Distanz zum Kindergarten: 1.00, Distanz zur Grundschule: 1.00, Distanz zur Realschule: 1.00, Distanz zum Gymnasium: 1.00, Distanz zur Autobahn: 5.00, Distanz vom Zentrum: 0.50
Anbieter der Immobilie
Atlas Immobilienservice GmbH
Wilhelm-Külz-Str. 22, 99084 Erfurt
Online-ID: 2mxqd52
Referenznummer: 3286
Finde Angebote wie dieses
Hier geht es zu unserem Impressum, den Allgemeinen Geschäftsbedingungen, den Hinweisen zum Datenschutz und nutzungsbasierter Online-Werbung.