

Julia Meitinger Immobilien
Frau Julia Meitinger
Kontaktiere den Anbieter schriftlich, es ist keine Telefonnummer hinterlegt.
Preise & Kosten
Provision für Käufer
2,38 % inkl. der. gesetzlichen MwSt.
Lage
In nur etwa 10 Gehminuten erreichen Sie die historische Altstadt von Bad Tölz, die mit ihrem
charmanten Flair, den liebevoll restaurierten Häusern und den einladenden Cafés und
Geschäften zum Bummeln und Verweilen einlädt.
Des Weiteren sind alle Einrichtungen des täglichen Bedarfs – von Supermärkten über
Apotheken...
Die Wohnung
Wohnungslage
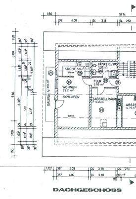
3. Geschoss (Dachgeschoss)
Derzeitige Nutzung
frei
Wohnanlage
Energie & Heizung
Warum sehe ich diese Anzeige? – Du siehst diese Anzeige basierend auf Ihrer Navigation auf unserer Website und den Suchkriterien, die du verwendet hast.
Energieausweistyp
Bedarfsausweis
Gebäudetyp
Wohngebäude
Baujahr laut Energieausweis
1983
Wesentliche Energieträger
Erdgas
Gültigkeit
16.01.2017 bis 15.01.2027
Effizienzklasse
E
Endenergiebedarf
140,20 kWh/(m²·a)
Weitere Energiedaten
Energieträger
Gas
Heizungsart
Zentralheizung
Details
Objektbeschreibung
- Lage: Beliebte Wohngegend in Bad Tölz, nur 10 Minuten zu Fuß in die historische
Marktstraße oder zum Bahnhof.
- Baujahr: 1983
- Wohnfläche: ca. 51,5 Quadratmeter, deutlich größere Grundfläche
- Raumgestaltung: Gemütliche Dachschrägen für ein großzügiges Raumgefühl
- Ausrichtung: Westausgerichteter Balkon mit...
Weitere Informationen
Provision
Der Maklervertrag mit mir und / oder meinem Beauftragten kommt durch schriftliche Vereinbarung oder durch die Inanspruchnahme meiner Maklertätigkeit auf der Basis des Objekt-Exposés und seiner Bedingungen zustande. Die seitens des Käufers zu entrichtende Vermittlungsgebühr (Provision) entspricht 2 % des...
Anbieter der Immobilie
Julia Meitinger Immobilien
Manhartstraße 17, 83646 Bad Tölz

Frau Julia Meitinger
Dein Ansprechpartner
Kontaktiere den Anbieter schriftlich, es ist keine Telefonnummer hinterlegt.
Online-ID: 2mxug53
Finde Angebote wie dieses
Hier geht es zu unserem Impressum, den Allgemeinen Geschäftsbedingungen, den Hinweisen zum Datenschutz und nutzungsbasierter Online-Werbung.