

DAHLER Potsdam | Berlin-Wannsee | Kleinmachnow
Herr Kevin Manhardt
033 ···
Nr. anzeigenPreise & Kosten
Provision für Käufer
7,14% inkl. MwSt. bezogen auf den beurkundeten Kaufpreis
Lage
Die malerische Lage an dem Naturdenkmal Katharinenholz und die Nähe zum Krongut Bornstedt sowie dem Park Sanssouci hat eine große Anziehungskraft auf alle, die stadtnah im Grünen wohnen wollen. In Bornim fühlen sich ca. 3.500 Menschen zu Hause, die idyllisch wohnen wollen, aber auf die urbanen Vorzüge einer Großstadt nicht...
Das Grundstück
Details
Objektbeschreibung
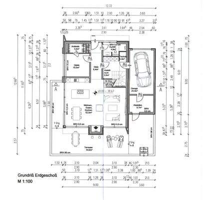
Auf einem weitläufigen, etwa 2.897 m² großen Grundstück entsteht in einem hochwertigen, neu erschlossenen Wohnquartier ein Ensemble aus zwei Mehrfamilien- und neun Einfamilienhäusern. Angeboten wird hier eines der Grundstücke für die letzten drei Einfamilienhäuser - mit privatem Waldanteil als spürbarem Mehrwert. Der offene...
Ausstattung
. Baugrundstück mit sehr guter Anbindung an das Potsdamer Stadtzentrum und Berlin
. Waldreiche Umgebung durch die Nähe zum Katharinenholz
. Ca. 2.897 m² Grundstücksgröße
. Grundstück liegt nicht im Bereich eines Bebauungsplans
. Bebauung nach § 34 BauGB
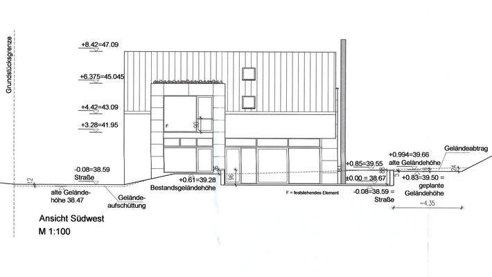
. Baugenehmigung für ein Einfamilienhaus mit ca. 185 m²...
Weitere Informationen
Sonstiges
Ihre Werte sind bei uns in besten Händen
DAHLER ist auf die Vermittlung hochwertiger Wohnimmobilien in bevorzugten Lagen spezialisiert. Seit über 30 Jahren wird unser Unternehmen von Kirsten und Björn Dahler geführt und setzt mit Innovationskraft und Servicequalität Maßstäbe in der Branche. Unsere mehr als...
Anbieter der Immobilie

Online-ID: 2mxva5z
Referenznummer: D-POT8146
Finde Angebote wie dieses
Hier geht es zu unserem Impressum, den Allgemeinen Geschäftsbedingungen, den Hinweisen zum Datenschutz und nutzungsbasierter Online-Werbung.