
PAASCH Immobilien Dunja Paasch
Frau Dunja Paasch
+49 ···
Nr. anzeigenPreise & Kosten
Provision für Käufer
3,1 % inkl. gesetzl. MwSt.
Lage
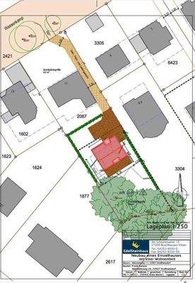
Das angebotene Grundstück befindet sich in Schmalenbeck/Großhansdorf.
Die Waldgemeinde liegt in einer der reizvollsten Landschaften des Kreises Stormarn in Schleswig-Holstein und stellt eine sehr beliebte Wohngemeinde am Rande Hamburgs dar.
Fußläufig erreichen Sie das Ortszentrum von Schmalenbek. Die...
Die Immobilie
Zu diesem Angebot wurden vom Anbieter keine weiteren Daten hinterlegt. Für weitere Informationen bitte den Anbieter kontaktieren.
Nach Informationen fragenDetails
Objektbeschreibung
Es handelt sich um ein Baugrundstück von ca. 765 m² in rückwärtiger Lage mit einer Baubindung der EdelSteinhaus GmbH.
Die Erschließung dieses Grundstücks erfolgt über eine gemeinsame, fast mittige Einfahrt mit dem vorderen Grundstück. Das Grundstück Nr. 1 gewährt dem Grundstück Nr. 2 durch ein nord-östlich gelegenes...
Ausstattung
Es liegt eine aktuelle Angebotsplanung der EdelSteinhaus GmbH vor:
Es handelt sich um ein modernes 1-Familienhaus mit einer offenen, modernen Grundrissgestaltung und einem Eingangsbereich mit offener Galerie.
Das Haus kann und sollte den individuellen Wünschen der Bauherren angepasst werden.
Die...
Weitere Informationen
Sonstiges
Geschäftsbedingungen:
Mit dieser Offerte bieten wir Ihnen das bezeichnete Objekt und zugleich unsere Dienste als Makler an. Bei aller Sorgfalt können wir keine Gewähr dafür übernehmen, dass alle Angaben richtig sind und das Objekt im Augenblick des Zugangs dieser Offerte noch verfügbar ist. Der Inhalt ist...
Anbieter der Immobilie
PAASCH Immobilien Dunja Paasch
Manhagener Allee 3, 22926 Ahrensburg
Online-ID: 2mxve5z
Referenznummer: V/39/2025
Finde Angebote wie dieses
Hier geht es zu unserem Impressum, den Allgemeinen Geschäftsbedingungen, den Hinweisen zum Datenschutz und nutzungsbasierter Online-Werbung.