
Bothmer Immobilia
050 ···
Nr. anzeigenPreise & Kosten
Provision für Käufer
3,57 inkl. MwSt.
Lage
Das Haus befindet sich in Hermannsburg, einem idyllischen Ortsteil der Gemeinde Südheide im Landkreis Celle. Hermannsburg besticht durch seine naturnahe Lage im Naturpark Südheide und bietet eine hohe Lebensqualität mit zahlreichen Freizeitmöglichkeiten wie Wandern, Radfahren und Kanufahren auf der Örtze.
Im Ort finden Sie...
Das Haus
Geschosse
2 Geschosse
Baujahr
1967
Bezug
sofort
Derzeitige Nutzung
frei
Energie & Heizung
Warum sehe ich diese Anzeige? – Du siehst diese Anzeige basierend auf Ihrer Navigation auf unserer Website und den Suchkriterien, die du verwendet hast.
Energieausweistyp
Bedarfsausweis
Gebäudetyp
Wohngebäude
Baujahr laut Energieausweis
2006
Wesentliche Energieträger
Gas
Gültigkeit
10.10.2025 bis 09.10.2035
Effizienzklasse
G
Endenergiebedarf
212,30 kWh/(m²·a)
Weitere Energiedaten
Haustyp
Massivhaus
Energieträger
Gas
Heizungsart
Zentralheizung
Details
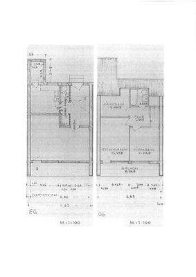
Objektbeschreibung
Dieses gepflegte Reihenmittelhaus in ruhiger Lage von Hermannsburg bietet mit ca. 92 m² Wohnfläche und einem ca. 330 m² großem Grundstück ein behagliches Zuhause für Paare oderkleine Familien. Das Haus überzeugt durch eine durchdachte Raumaufteilung, helle Zimmer und einen liebevoll angelegten Garten mit Terrasse und...
Ausstattung
- Wohnfläche: ca. 92 m²
- Grundstück: ca. 330 m²
- Terrasse (teilweise überdacht) mit Markise
- Balkon mi Gartenblick
- Gartenhaus & Abstellraum
- Holztüren im gesamten Haus
- Fußbodenbeläge: Teppich, Klickparkett, Fliesen
- Im Wohn-/Esszimmer liegt unter dem Teppich ein Holzparkettboden
-...
Weitere Informationen
Stichworte
Versorgung: Städtische Wasserversorgung, Städtische Stromversorgung
Anbieter der Immobilie

Bothmer Immobilia
Online-ID: 2mxwp5c
Finde Angebote wie dieses
Hier geht es zu unserem Impressum, den Allgemeinen Geschäftsbedingungen, den Hinweisen zum Datenschutz und nutzungsbasierter Online-Werbung.