

KDH Immobilien GmbH
Frau Simone Unger-Ullmann
+43 ···
Nr. anzeigenPreise & Kosten
Provision für Käufer
provisionsfrei
Lage
NÄHE HIRSCHSTÄTTNER BADETEICH
Die Wohnung
Bezug
sofort
Wohnanlage
Energie & Heizung
Warum sehe ich diese Anzeige? – Du siehst diese Anzeige basierend auf Ihrer Navigation auf unserer Website und den Suchkriterien, die du verwendet hast.
Heizwärmebedarf (HWB)
23,00 kWh/(m²·a)
Gesamtenergieeffizienz (fGEE)
0,65
Details
Objektbeschreibung
EISKALT REDUZIERT - 6,5% WENIGER ZAHLEN, WARM WOHNEN!
ZUSÄTZLICH GIBT ES PRO ZIMMER EINEN € 1000,- GUTSCHEIN VON XXXLUTZ!
WOHNEN IM JONAS AM FELD - Bauplatz J, Anni-Haider-Weg 9+11; Maria-Emhart-Weg 14, 1220 Wien
In sehr guter Lage, wenige Minuten zu Fuß vom Hirschstettner...
Weitere Informationen
Stichworte
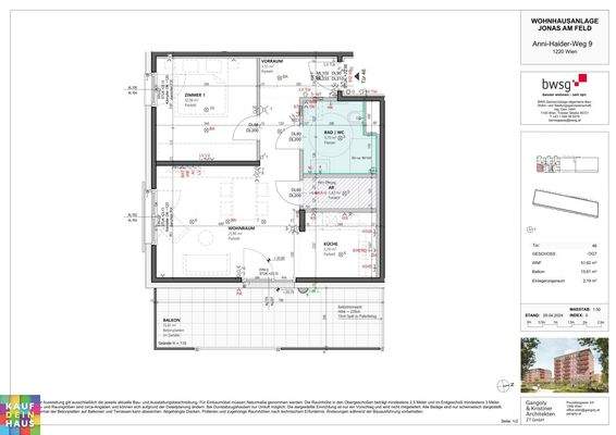
Anzahl Balkone: 1, Balkon-Terrassen-Fläche: 15,61 m², Bundesland: Wien, Wohnungsnr.: 46
Dokumente
Anbieter der Immobilie
KDH Immobilien GmbH
Voitmann 43, 8272 BAD WALTERSDORF

Online-ID: 2mxyg5k
Referenznummer: OBGC202512022146085238590afbcb5
Finde Angebote wie dieses
Günstige Immobilienfinanzierung einfach online berechnen
Persönliches Angebot berechnenWarum sehe ich diese Werbung? – Du siehst diese Werbung basierend auf Deiner Navigation auf unserer Website und der von Dir verwendeten Suchkriterien.
Diese Werbung wird bezahlt von durchblicker
Werbung melden
Hier geht es zu unserem Impressum, den Allgemeinen Geschäftsbedingungen, den Hinweisen zum Datenschutz und nutzungsbasierter Online-Werbung.