
McMakler GmbH
Ihr McMakler Team
080 ···
Nr. anzeigenPreise & Kosten
Provision für Käufer
Die Provision i.H.v. 3,57 % inkl. MwSt. ist mit Kaufvertragsbeurkundung fällig, sofern der Verkaufspreis über 83.000,00 € liegt.
Liegt der Verkaufspreis dagegen bei/unter 83. Weitere Informationen siehe Provisionshinweis.
Lage
Lage: Ruhige Umgebung am Stadtrand von Hamburg bietet grüne Nachbarschaft und kurze Anfahrtswege
Bildung und Betreuung: Nur ca. 800 m zu Kindergarten und Schule - ideale Verhältnisse für Ihre Familie
Nahversorgung: Geschäfte wie Supermarkt, Apotheke und Postfiliale ca. 800 m entfernt
Anbindung: Entspannte Anbindung...
Das Haus
Kategorie
Einfamilienhaus
Baujahr
1971
Bezug
sofort
Energie & Heizung
Warum sehe ich diese Anzeige? – Du siehst diese Anzeige basierend auf Ihrer Navigation auf unserer Website und den Suchkriterien, die du verwendet hast.
Energieausweistyp
Bedarfsausweis
Gebäudetyp
Wohngebäude
Baujahr laut Energieausweis
1971
Wesentliche Energieträger
Öl
Effizienzklasse
H
Endenergiebedarf
264,20 kWh/(m²·a)
Weitere Energiedaten
Energieträger
Öl
Heizungsart
Zentralheizung
Details
Objektbeschreibung
Objektnr: 1062857
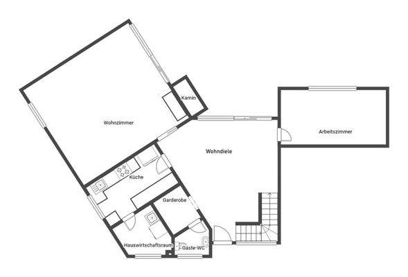
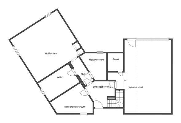
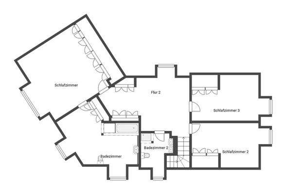
Dieses großzügige Einfamilienhaus in ruhiger Lage von Quickborn bietet Ihnen die seltene Gelegenheit, ein lichtdurchflutetes Zuhause ganz nach Ihren eigenen Vorstellungen zu gestalten. Das im Jahr 1971 erbaute Haus steht auf einem rund 1.009 m² großen Grundstück und verfügt über ca. 251 m² Wohnfläche...
Ausstattung
+ Raumgefühl: Heller Eingang mit Schiebetür, direktem Austritt und ca. 251?m² Wohnfläche auf gutem Grundriss
+ Substanz: Baujahr 1971, renovierungsbedürftig, aber solide Basis und neue Ölheizung aus 2022
+ Platz: 6 Zimmer, 2 Bäder, Gäste-WC, Sauna, Pool, Innen-/Außenkamin, zwei großzügige Terrassen
+...
Weitere Informationen
Provisionshinweis
Die Provision i.H.v. 3,57 % inkl. MwSt. ist mit Kaufvertragsbeurkundung fällig, sofern der Verkaufspreis über 83.000,00 € liegt.
Liegt der Verkaufspreis dagegen bei/unter 83.000,00 €, ist die fest vereinbarte Mindestprovision i.H.v. mind. 5.950,00 € inkl. MwSt. mit Kaufvertragsbeurkundung fällig...
Anbieter der Immobilie
McMakler GmbH
Am Postbahnhof 17, 10243 Berlin
Online-ID: 2mxyv5t
Referenznummer: 5667587fa5
Finde Angebote wie dieses
Hier geht es zu unserem Impressum, den Allgemeinen Geschäftsbedingungen, den Hinweisen zum Datenschutz und nutzungsbasierter Online-Werbung.