
Boom Living GmbH
Herr Stephan Öppinger
+43 ···
Nr. anzeigenPreise & Kosten
Provision für Käufer
Bitte beachte, das Angebot kann bei Vertragsabschluss die Zahlung einer Provision beinhalten. Weitere Informationen erhältst Du vom Anbieter.
Lage
Die Lainzer Straße bietet Wohnen mit bester Infrastruktur. Ärzte, Apotheken, Schulen, Kindergärten sowie Einkaufsmöglichkeiten befinden sich in unmittelbarer Nähe. Das Krankenhaus Hietzing und nahe Grünanlagen wie der Tiergarten Schönbrunn oder der Lainzer Tiergarten laden zur Erholung ein.
Öffentliche...
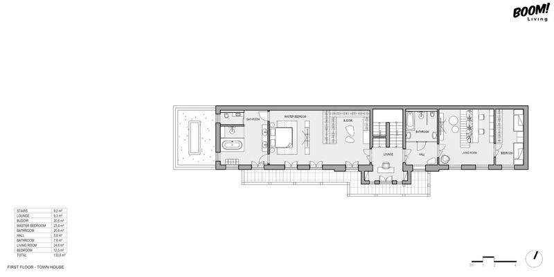
Das Haus
Kategorie
Villa
Baujahr
1879
Energie & Heizung
Warum sehe ich diese Anzeige? – Du siehst diese Anzeige basierend auf Ihrer Navigation auf unserer Website und den Suchkriterien, die du verwendet hast.
Heizwärmebedarf (HWB)
354,00 kWh/(m²·a)
Gesamtenergieeffizienz (fGEE)
3,34
Weitere Energiedaten
Energieträger
Gas
Heizungsart
Zentralheizung
Details
Objektbeschreibung
Vision einer modernen Eleganz - historische Villa mit Neubaukonzept im 13. Bezirk
Zum Verkauf steht eine außergewöhnliche Altbauvilla im 13. Bezirk - ein Ort mit Geschichte, der durch ein visionäres Konzept zu neuem Leben erweckt werden kann.
Die Planung zeigt eindrucksvoll, wie sich klassischer Charme und...
Preisinformation
1 Garagenstellplatz
Weitere Informationen
Stichworte
Garage vorhanden, Gartenfläche: 2.230,00 m², Bundesland: Wien, 2 Etagen
Anbieter der Immobilie
Boom Living GmbH
Kärntner Straße 12, 1010 WIEN
Online-ID: 2my2657
Referenznummer: OBGC2025110509320592853c87ee64e
Finde Angebote wie dieses
Günstige Immobilienfinanzierung einfach online berechnen
Persönliches Angebot berechnenWarum sehe ich diese Werbung? – Du siehst diese Werbung basierend auf Deiner Navigation auf unserer Website und der von Dir verwendeten Suchkriterien.
Diese Werbung wird bezahlt von durchblicker
Werbung melden
Hier geht es zu unserem Impressum, den Allgemeinen Geschäftsbedingungen, den Hinweisen zum Datenschutz und nutzungsbasierter Online-Werbung.