
AREV Immobilien GmbH
Frau Mathilde Feichtenschlager
066 ···
Nr. anzeigenPreise & Kosten
Kaution
7.663,38 €
Provision für Mieter
7.261,52 € inkl. 20% USt.
Warum sehe ich diese Anzeige? – Du siehst diese Anzeige basierend auf Ihrer Navigation auf unserer Website und den Suchkriterien, die du verwendet hast.
Lage
Die Mietimmobilie in Ried im Innkreis überzeugt durch seine zentrale Lage und optimale Erreichbarkeit. In unmittelbarer Nähe befinden sich wichtige Einrichtungen wie Arztpraxen, Apotheken, die eine hohe Frequentierung garantieren. Einkaufsmöglichkeiten wie Supermärkte, Bäckereien und ein Einkaufszentrum runden das Angebot ab...
Büro-/Praxisfläche
Kategorie
Bürofläche
Geschoss
Erdgeschoss
Energie & Heizung
Warum sehe ich diese Anzeige? – Du siehst diese Anzeige basierend auf Ihrer Navigation auf unserer Website und den Suchkriterien, die du verwendet hast.
Heizwärmebedarf (HWB)
23,50 kWh/(m²·a)
Weitere Energiedaten
Heizungsart
Luft-/Wasser-Wärmepumpe
Details
Objektbeschreibung
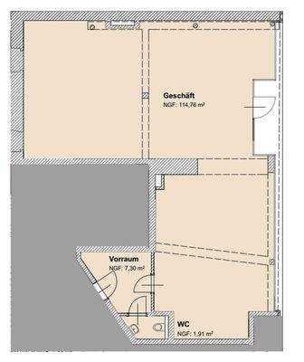
Entdecken Sie die ideale Gelegenheit für Ihr Gewerbe im Herzen von Ried im Innkreis! Dieses attraktive Mietfläche im Erdgeschoss bietet Ihnen eine großzügige 124 m² und ist perfekt geeignet für Büro / Kanzlei / Praxis oder Dienstleistungsangebote.
Sie erhalten hier nicht nur eine erstklassige Lage, sondern...
Preisinformation
1 Garagenstellplatz
Nettokaltmiete: 1.682,27 EUR
Weitere Informationen
Stichworte
Tiefgarage vorhanden, Gesamtfläche: 124,00 m², Bundesland: Oberösterreich
Anbieter der Immobilie

AREV Immobilien GmbH
Hannesgrub Süd 6, 4911 RIED IM INNKREIS
Online-ID: 2my4h5g
Referenznummer: OBGC20251114085025845d6cb53aaa2
Finde Angebote wie dieses
Hier geht es zu unserem Impressum, den Allgemeinen Geschäftsbedingungen, den Hinweisen zum Datenschutz und nutzungsbasierter Online-Werbung.