

Immobilien Service Bärbel Bahr e. K. & BB Wohnbau Böblingen GmbH
070 ···
Nr. anzeigenPreise & Kosten
Kaution
3.700,00
Warum sehe ich diese Anzeige? – Du siehst diese Anzeige basierend auf Ihrer Navigation auf unserer Website und den Suchkriterien, die du verwendet hast.
Lage
Böblingen liegt zentral im Herzen der wirtschaftsstarken Region Stuttgart und gehört zu den dynamischsten Städten im Südwesten Deutschlands. Mit rund 50.000 Einwohnern ist Böblingen nicht nur ein wichtiger Technologiestandort, sondern auch ein lebenswerter Wohnort mit hoher Lebensqualität, hervorragender Infrastruktur und...
Die Wohnung
Wohnanlage
Energie & Heizung
Warum sehe ich diese Anzeige? – Du siehst diese Anzeige basierend auf Ihrer Navigation auf unserer Website und den Suchkriterien, die du verwendet hast.
Energieausweistyp
Bedarfsausweis
Gebäudetyp
Wohngebäude
Baujahr laut Energieausweis
2025
Wesentliche Energieträger
Fernwärme
Gültigkeit
30.05.2025 bis 29.05.2035
Effizienzklasse
B
Endenergiebedarf
56,80 kWh/(m²·a)
Weitere Energiedaten
Energieträger
Fernwärme
Heizungsart
Fußbodenheizung
Details
Objektbeschreibung
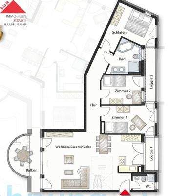
Diese stilvolle Neubauwohnung in zentraler innerstädtischen Lage von Böblingen überzeugt durch ihre moderne Architektur, hochwertige Ausstattung und eine durchdachte Raumaufteilung. Auf rund 112 m² Wohnfläche bietet die 4-Zimmer-Wohnung ein großzügiges, lichtdurchflutetes Zuhause für Paare, Familien oder anspruchsvolle...
Ausstattung
- Qualitative Einbauküche inkl. E-Geräten
- Aufzug
- Barrierefreier Zugang
- Hausmeisterservice
- Kellerraum
- Eiche-Parkettboden mit großen Dielen
- Fußbodenheizung
- Tageslichtbad
- Bodengleiche Dusche mit hochwertiger Duschabtrennung aus Glas
- Badewanne
- Separates WC
- Fernwärme
-...
Preisinformation
1 Tiefgaragenstellplatz, Miete: 80,00 EUR
Nettokaltmiete: 1.850,00 EUR
Weitere Informationen
sonstiges
Bitte haben Sie Verständnis, dass wir Ihnen aufgrund gesetzlicher Vorgaben weitere Informationen erst gegen Vorlage Ihrer vollständigen Anschrift mit Telefonnummer bzw. E-Mail Adresse zur Verfügung stellen können.
Alle Angaben zur Wohnung beruhen auf Aussagen des Vermieters. Der Makler übernimmt keine...
Anbieter der Immobilie

Immobilien Service Bärbel Bahr e. K. & BB Wohnbau Böblingen GmbH
Online-ID: 2my5858
Referenznummer: 09386
Finde Angebote wie dieses
Hier geht es zu unserem Impressum, den Allgemeinen Geschäftsbedingungen, den Hinweisen zum Datenschutz und nutzungsbasierter Online-Werbung.