
ohne-makler.net - Immobilien selbst vermarkten
Privat von GbR Boizenburg
Kontaktiere den Anbieter schriftlich, es ist keine Telefonnummer hinterlegt.
Preise & Kosten
Kaution
1.800,00
Warum sehe ich diese Anzeige? – Du siehst diese Anzeige basierend auf Ihrer Navigation auf unserer Website und den Suchkriterien, die du verwendet hast.
Lage
Das Mehrfamilienhaus mit 8 Wohneinheiten und Nebengelass befindet sich in einer ruhigen Wohngegend in einer Seitenstraße, umgeben von Eigenheimen mit wenig Durchgangsverkehr.
In der Nähe befinden sich:
- ein Discounter (450m Fußweg)
- ein Bäcker
- eine Raiffeisenbank
- der Bahnhof (550m Fußweg)
- eine...
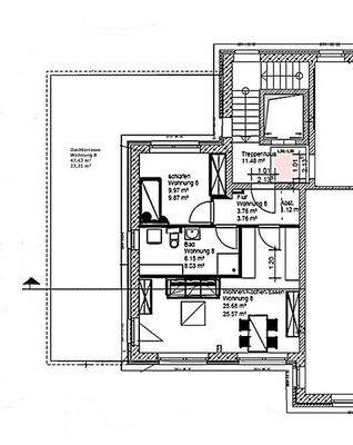
Die Wohnung
Wohnungslage
2. Geschoss
Bezug
nach Absprache
Wohnanlage
Energie & Heizung
Warum sehe ich diese Anzeige? – Du siehst diese Anzeige basierend auf Ihrer Navigation auf unserer Website und den Suchkriterien, die du verwendet hast.
Weitere Energiedaten
Heizungsart
Fußbodenheizung, Luft-/Wasser-Wärmepumpe
Details
Objektbeschreibung
ERSTBEZUG / PROVISIONSFREI: Einzigartige 2-Raum-Wohnung mit exklusiver 47m² Dachterrasse - mit Nebengelass, in ruhiger Lage und Nähe zum Bahnhof
Modernes Mehrfamilienhaus mit 8 WE, Fahrstuhl und Nebengelass
Unser Haus ist Baujahr 2025 und nach dem KFW55-Standard errichtet.
Diese außergewöhnliche 2-Raum-Wohnung ist...
Ausstattung
Balkon, Dachterrasse, Fahrstuhl, Vollbad, Fliesen
Bemerkungen:
- Nebengelass zu jeder Wohnung: überdachter Stellplatz mit privatem Abstell-/Arbeitsraum
Zusätzlich gibt es behindertengerechte Parkplätze/Besucherparkplätze auf dem Hof.
Preisinformation
1 Carportplatz, Miete: 100,00 EUR
Weitere Informationen
Sonstiges
Heizungsart: Fußbodenheizung
Energieträger: Luft-/Wasserwärme
Energieausweis nicht vorhanden
Besichtigungsanfragen bitte nur bei ernsthaftem Interesse!
Makleranfragen nicht erwünscht. Nach § 7 UWG sind unaufgeforderte Kontaktaufnahmen durch Makler ohne ausdrückliche Einwilligung des Empfängers...
Anbieter der Immobilie
ohne-makler.net - Immobilien selbst vermarkten
Humboldtstr. 25 A, 21509 Glinde
Privat von GbR Boizenburg
Dein Ansprechpartner
Kontaktiere den Anbieter schriftlich, es ist keine Telefonnummer hinterlegt.
Online-ID: 2my585a
Referenznummer: 397243
Finde Angebote wie dieses
Hier geht es zu unserem Impressum, den Allgemeinen Geschäftsbedingungen, den Hinweisen zum Datenschutz und nutzungsbasierter Online-Werbung.