team19 Immobilien GmbH

Herr Stefan Djukic

Exklusives Wohnen in Simmering - Neubau mit urbaner Infrastruktur & erholsamer Umgebung!

€ 879
Gesamtmiete inkl. BK
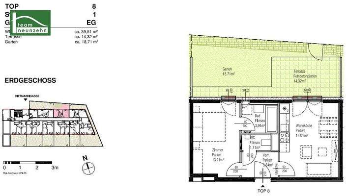
39,51 m²
Wohnfläche ca.
2
Zimmer

Der Anbieter dieses Objekts hat gegenüber der AVIV Germany GmbH als Betreiber dieses Online-Marktplatzes erklärt, nicht als Unternehmer im Sinne des § 1 KSchG zu handeln. Die im Verbraucherschutzrecht der Union verankerten Verbraucherrechte (insbesondere Informationspflichten und Rücktritts- bzw. Widerrufsrechte) finden auf den Vertrag zwischen dem Anbieter des Objekts und Ihnen (dem Interessenten) keine Anwendung.

Gewerblicher Anbieter

Der Anbieter dieses Objekts hat gegenüber der AVIV Germany GmbH als Betreiber dieses Online-Marktplatzes erklärt, als Unternehmer im Sinne des § 1 KSchG zu handeln.

AdresseDittmanngasse 4
1110 Wien 
(Simmering)
Auf Karte ansehen

Preise & Kosten

Gesamtmiete

inkl. Betriebskosten

€ 879
Nettokaltmiete € 714,54 Betriebskosten € 84,55

Kaution

3 Bruttomonatsmieten

Provision für Mieter

Gemäß Erstauftraggeberprinzip bezahlt der Abgeber die Provision.

Lage

Enkplatz, Simmeringer Hauptstraße, Mautner Markhof Gasse

Die Wohnung

Wohnungslage

Erdgeschoss

Bezug

01.03.2026

  • Bad mit Fenster und Wanne
  • Terrasse
  • Einbauküche, offene Küche
  • Böden: Parkett
  • Ausstattung: neuwertig

Wohnanlage

  • Baujahr: 2020
  • Zustand: Neubau
  • Personenaufzug

Energie & Heizung

Heizwärmebedarf (HWB)

A

20,81 kWh/(m²·a)

Gesamtenergieeffizienz (fGEE)

A

0,73

Weitere Energiedaten

Energieträger

Fernwärme

Heizungsart

Fußbodenheizung

Details

Objektbeschreibung

ZENTRAL UND RUHIG WOHNEN - DAS BESTE AUS STADT UND ERHOLUNG!

Wohnen im Herzen von Simmering - Dittmanngasse 4, 1110 Wien

Das moderne Neubauprojekt verbindet urbanes Leben mit Ruhe und Lebensqualität. Die familienfreundliche Wohnanlage liegt in einer ruhigen Seitengasse, nur wenige Minuten vom U3-Enkplatz...

Mehr anzeigen

Preisinformation

Nettokaltmiete: 714,54 EUR

Weitere Informationen

Stichworte
Nord-Balkon/Terrasse, Rolladen, Nutzfläche: 72,54 m², Gesamtfläche: 72,54 m², Freifläche: 33,03 m², Anzahl der Badezimmer: 1, Anzahl der separaten WCs: 1, Anzahl Terrassen: 1, Balkon-Terrassen-Fläche: 14,32 m², Gartenfläche: 18,71 m², Bundesland: Wien, 8 Etagen, Wohnungsnr.: 8

Anbieter der Immobilie

Partner

team19 Immobilien GmbH

im Durchschnitt  4,20  Sterne
(bei 2 Bewertungen)

Handelskai 94-96/44. Stock, 1200 BRIGITTENAU

user

Herr Stefan Djukic

Dein Ansprechpartner

Anbieter-Website Anbieter-Profil Anbieter-Impressum

Online-ID: 2my5d5l

Referenznummer: OBGC202512050728529546c0d19d941

Finde Angebote wie dieses

imageimageimage

Hier geht es zu unserem Impressum, den Allgemeinen Geschäftsbedingungen, den Hinweisen zum Datenschutz und nutzungsbasierter Online-Werbung.