team19 Immobilien GmbH

Herr Paul Bichelhuber

Exklusive, große Stadtwohnung in Top-Lage - Nobles Wohnen auf 126m² + Loggia und hochwertiger Ausstattung - JETZT ANFRAGEN

€ 799.000,37
Kaufpreis
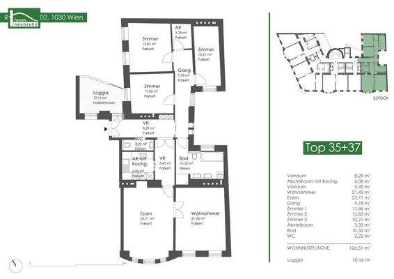
126,07 m²
Wohnfläche ca.
5
Zimmer
Finanzierung berechnen mit durchblicker

Der Anbieter dieses Objekts hat gegenüber der AVIV Germany GmbH als Betreiber dieses Online-Marktplatzes erklärt, nicht als Unternehmer im Sinne des § 1 KSchG zu handeln. Die im Verbraucherschutzrecht der Union verankerten Verbraucherrechte (insbesondere Informationspflichten und Rücktritts- bzw. Widerrufsrechte) finden auf den Vertrag zwischen dem Anbieter des Objekts und Ihnen (dem Interessenten) keine Anwendung.

Gewerblicher Anbieter

Der Anbieter dieses Objekts hat gegenüber der AVIV Germany GmbH als Betreiber dieses Online-Marktplatzes erklärt, als Unternehmer im Sinne des § 1 KSchG zu handeln.

AdresseRennweg 102
1030 Wien,Landstraße 
Auf Karte ansehen

Preise & Kosten

Kaufpreis € 799.000,37 Betriebskosten € 263,77 Preis/m² € 5.846,20

Provision für Käufer

3% des Kaufpreises zzgl. 20% USt.

Lage

Die Wohnung befindet sich in einer zentralen Lage im 3. Bezirk Wiens, genauer gesagt im Fasanviertel, nahe dem bekannten Schloss Belvedere. Sie liegt im Nordostsüden und bietet somit eine gute Mischung aus Sonnenlicht und Schatten. In unmittelbarer Nähe befinden sich der Schweizergarten und der St. Marx-Park, die zu...

Mehr anzeigen

Die Wohnung

Wohnungslage

4. Geschoss

Bezug

ab sofort

  • Bad mit Fenster, Wanne und Dusche, Gäste-WC
  • Loggia
  • barrierefrei, WG-geeignet
  • Böden: Estrich, Fliesenboden, Parkett
  • Zustand: renoviert / saniert
  • Weitere Räume: Abstellraum

Wohnanlage

  • Baujahr: 1910
  • Zustand: Altbau (bis 1945)
  • Personenaufzug

Energie & Heizung

Heizwärmebedarf (HWB)

C

71,50 kWh/(m²·a)

Gesamtenergieeffizienz (fGEE)

D

1,85

Weitere Energiedaten

Energieträger

Gas

Heizungsart

Fußbodenheizung, Zentralheizung

Details

Objektbeschreibung

Erstbezug Altbau-Wohnung im Jugendstilhaus mit hofseitiger Loggia in toller urbaner Lage in 1030 Wien

Erleben Sie die perfekte Kombination aus urbanem Wohnen und grüner Oase in dieser traumhaften Altbauwohnung in 1030 Wien, welche mittels Personenaufzug erschlossen ist. Die Wohnung bietet nicht nur eine ideale Höhe für...

Mehr anzeigen

Weitere Informationen

Stichworte
Nord-Balkon/Terrasse, Nutzfläche: 136,29 m², Gesamtfläche: 136,66 m², Freifläche: 10,17 m², Anzahl der Badezimmer: 1, Anzahl der separaten WCs: 2, Anzahl Loggias: 1, Balkon-Terrassen-Fläche: 10,16 m², Kellerfläche: 3,37 m², Bundesland: Wien, 7 Etagen, Wohnungsnr.: 35-37, modernisiert: 2019

Anbieter der Immobilie

Partner

team19 Immobilien GmbH

im Durchschnitt  4,20  Sterne
(bei 2 Bewertungen)

Handelskai 94-96/44. Stock, 1200 BRIGITTENAU

user

Herr Paul Bichelhuber

Dein Ansprechpartner

Anbieter-Website Anbieter-Profil Anbieter-Impressum

Online-ID: 2my5v5k

Referenznummer: OBGC202512031836053497c1af5106b

Finde Angebote wie dieses

imageimageimage

Günstige Immobilienfinanzierung einfach online berechnen

Persönliches Angebot berechnen

Hier geht es zu unserem Impressum, den Allgemeinen Geschäftsbedingungen, den Hinweisen zum Datenschutz und nutzungsbasierter Online-Werbung.