

ORANGE Immobilienagentur
Herr Sebastian Kroll
015 ···
Nr. anzeigenPreise & Kosten
Kaution
3.390,00
Abschreibung/Anlage
Denkmalschutz-Afa
Warum sehe ich diese Anzeige? – Du siehst diese Anzeige basierend auf Ihrer Navigation auf unserer Website und den Suchkriterien, die du verwendet hast.
Lage
Die Wohnung befindet sich in zentraler und zugleich ruhiger Lage direkt hinter dem DATEV IT Campus und dem Landgericht Nürnberg Fürth. Die Umgebung überzeugt durch eine hervorragende Infrastruktur und kurze Wege. Einkaufsmöglichkeiten, Ärzte, Apotheken, Schulen und Kindertagesstätten sind bequem zu Fuß oder mit dem Fahrrad...
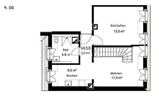
Die Wohnung
Kategorie
Maisonette
Wohnungslage
4. Geschoss
Bezug
sofort
Wohnanlage
Energie & Heizung
Warum sehe ich diese Anzeige? – Du siehst diese Anzeige basierend auf Ihrer Navigation auf unserer Website und den Suchkriterien, die du verwendet hast.
Energieausweistyp
Bedarfsausweis
Gebäudetyp
Wohngebäude
Baujahr laut Energieausweis
2022
Gültigkeit
bis 24.05.2032
Effizienzklasse
B
Endenergiebedarf
56,10 kWh/(m²·a)
Weitere Energiedaten
Energieträger
Gas
Heizungsart
Fußbodenheizung, Luft-/Wasser-Wärmepumpe
Details
Objektbeschreibung
Diese charmante Maisonette-Wohnung überzeugt durch helle Räume, hohe Decken und neue Fenster im eleganten Altbaustil, die eine angenehme Lichtdurchflutung schaffen. Der durchdachte Grundriss sorgt für ein großzügiges Raumgefühl und lädt zum Wohlfühlen ein. Stilvolle Details und edle Holzböden unterstreichen den...
Ausstattung
- Einbauküche
- Kernsaniert 2023
- 75qm Grundfläche
- Raumhöhe ca. 2,50 m
- 4. Obergeschoss & Dachgeschoss
- Fußbodenheizung
- Moderne Grundrisse
- Kellerabteile zu jeder Einheit
- Neue Eichenparkettböden
- Neue Holzfenster
- Bad mit Tageslicht und geschlossener Duschkabine
- Nachhaltige...
Weitere Informationen
Sonstiges
Gerne sind wir für weitere Fragen und Informationen unter Tel.: 0151- 70 14 77 20, erreichbar.
Alle Angaben stammen vom Eigentümer der Makler übernimmt hierfür keine Haftung.
Anfragen über die Immobilienportale werden nur mit vollständiger Adresse und Telefonnummer bearbeitet. Jeder ORANGE...
Anbieter der Immobilie
ORANGE Immobilienagentur
Kumpfmühler Str. 59, 93051 Regensburg

Online-ID: 2my6k5h
Referenznummer: 142-VW-BK.13-5
Finde Angebote wie dieses
Hier geht es zu unserem Impressum, den Allgemeinen Geschäftsbedingungen, den Hinweisen zum Datenschutz und nutzungsbasierter Online-Werbung.