

Immobilien Bart-Vermittlung und Finanzierung
Herr Sebastian Junk
+49 ···
Nr. anzeigenPreise & Kosten
Provision für Käufer
3,57 % inkl. MwSt
Lage
Hilbringen ist einer von 17 Stadtteilen der Stadt Merzig im Landkreis Merzig-Wadern (Saarland) und liegt gegenüber der Kernstadt am linken Saarufer und verfügt über eine intakte Infrastruktur. Geschäfte für den täglichen Bedarf sind fußläufig zu erreichen. Eine Apothekte, Ärzte sowie zahlreiche Restaurants befinden sich...
Gastronomie/Hotel
Energie & Heizung
Warum sehe ich diese Anzeige? – Du siehst diese Anzeige basierend auf Ihrer Navigation auf unserer Website und den Suchkriterien, die du verwendet hast.
Weitere Energiedaten
Energieträger
Gas
Heizungsart
Zentralheizung
Details
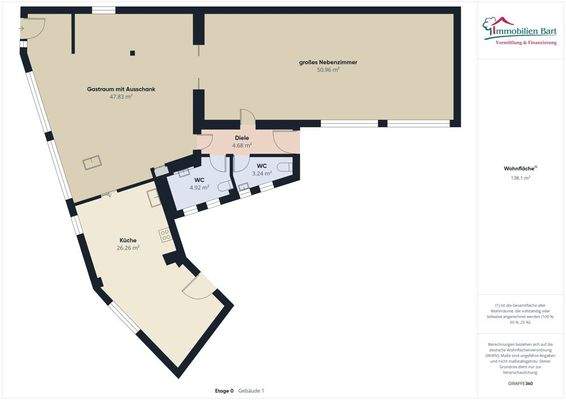
Objektbeschreibung
Dieses großzügige Anwesen vereint Wohnen, Vermieten und gewerbliche Nutzung in einem attraktiven Gesamtpaket. Es besteht aus einem Wohnhaus, einer separaten Wohnung sowie einer voll ausgestatteten Gaststätte mit Gastraum, Küche und Nebenräumen - ideal für Selbstständige, Gastronomen oder Investoren.
Das Wohnhaus...
Ausstattung
Die Böden sind mit Fliesen, Laminat sowie Parkett belegt.
Die Beheizung in beiden Gebäuden erfolgt durch eine Gas-Zentralheizung.
Der Energieausweis ist in Bearbeitung.
Besonderheiten:
- Großzügiges Anwesen mit vielseitiger Nutzungsmöglichkeit: Wohnen, Vermieten und Gewerbe
- Voll ausgestattete Gaststätte...
Preisinformation
7 Stellplätze
2 Garagenstellplätze
Weitere Informationen
Sonstiges
Unser gesamtes Immobilienangebot können Sie unter www.immobilien-bart.de einsehen.
Haben wir Ihr Interesse geweckt? Für einen unverbindlichen Besichtigungstermin stehen wir Ihnen nach vorheriger Terminabsprache gerne zur Verfügung. Bitte haben Sie Verständnis dafür, dass wir Anfragen nur bearbeiten, wenn...
Anbieter der Immobilie

Online-ID: 2myae58
Referenznummer: 10013
Finde Angebote wie dieses
Hier geht es zu unserem Impressum, den Allgemeinen Geschäftsbedingungen, den Hinweisen zum Datenschutz und nutzungsbasierter Online-Werbung.