
Königskinder Immobilien GmbH
Herr Nandolf Haupt
004 ···
Nr. anzeigenPreise & Kosten
Provision für Käufer
jeweils 2,38 % vom Kaufpreis inkl. der gesetzl. MwSt.jeweils 2,38 % vom Kaufpreis inkl. der gesetzl. MwSt. inkl. MwSt.
Lage
Das charmante 2-Familienhaus befindet sich in der idyllischen Stadt Renningen, die durch ihre malerische Landschaft und die hervorragende Anbindung an regionale und städtische Zentren besticht. Eingebettet in eine ruhige Wohngegend, bietet die Lage sowohl Privatsphäre als auch eine familienfreundliche Atmosphäre. Die Umgebung...
Die Wohnung
Kategorie
Maisonette
Wohnanlage
Energie & Heizung
Warum sehe ich diese Anzeige? – Du siehst diese Anzeige basierend auf Ihrer Navigation auf unserer Website und den Suchkriterien, die du verwendet hast.
Energieausweistyp
Bedarfsausweis
Gebäudetyp
Wohngebäude
Baujahr laut Energieausweis
2023
Wesentliche Energieträger
LUFTWP
Gültigkeit
bis 01.12.2034
Effizienzklasse
A+
Endenergiebedarf
6,50 kWh/(m²·a)
Weitere Energiedaten
Heizungsart
Fußbodenheizung, Luft-/Wasser-Wärmepumpe, Zentralheizung
Details
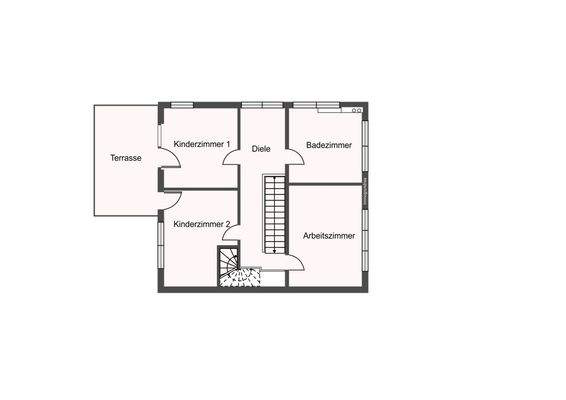
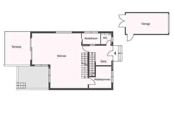
Objektbeschreibung
Willkommen in Ihrem Haus im Haus in Renningen! Dieses neuwertige Maisonette-Wohnung auf 3 Etagen wurde im Jahr 2023 in solider Massivbauweise errichtet, bietet auf drei Etagen höchsten Wohnkomfort und lässt keine Wünsche offen.
Auf einem großzügigen Grundstück von 560 m² erstreckt sich das beeindruckende Anwesen mit 2...
Ausstattung
Diese exquisite Immobilie bietet eine Vielzahl an Annehmlichkeiten, die Ihren Wohnkomfort auf ein neues Niveau heben. Betreten Sie ein großzügig gestaltetes Zuhause mit einer offenen Einbauküche, die ideal für kulinarische Erlebnisse und geselliges Beisammensein ist. Die große Terrasse und die Möglichkeit der Gartennutzung...
Weitere Informationen
Sonstiges
Da wir uns bei allen Angaben auf die Informationen Dritter stützen müssen, können wir keine Gewähr für deren Richtigkeit und Vollständigkeit übernehmen.
Bitte haben Sie Verständnis dafür, dass wir nur Anfragen mit vollständiger Adressangabe und erreichbarer Handynummer bearbeiten können.
Nachdem...
Anbieter der Immobilie
Online-ID: 2myaf5w
Referenznummer: LDW1.NH.10710
Finde Angebote wie dieses
Hier geht es zu unserem Impressum, den Allgemeinen Geschäftsbedingungen, den Hinweisen zum Datenschutz und nutzungsbasierter Online-Werbung.