
OTTO Immobilien
Frau Magdalena Lemut, BSc (WU)
004 ···
Nr. anzeigenPreise & Kosten
Kaution
3 BMM
Provision für Mieter
3 BMM zzgl. 20% USt.
Warum sehe ich diese Anzeige? – Du siehst diese Anzeige basierend auf Ihrer Navigation auf unserer Website und den Suchkriterien, die du verwendet hast.
Lage
Der Wiener Prater ist in wenigen Gehminuten erreichbar und lädt zum Entspannen, Joggen, Radfahren oder Tennis spielen ein. Am anderen Ende von TownTown bietet die windgeschützte Piazza einen Raum zum Verweilen und Arbeiten im Freien.
Durch zwei Stationen der U3 (Erdberg und Schlachthausgasse) ist das Gesamtprojekt...
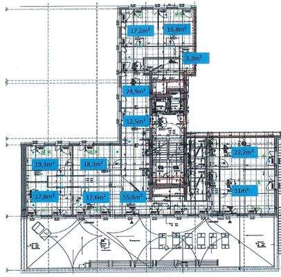
Büro-/Praxisfläche
Kategorie
Bürofläche
Bezug
ab sofort
Geschoss
3. Geschoss
Energie & Heizung
Warum sehe ich diese Anzeige? – Du siehst diese Anzeige basierend auf Ihrer Navigation auf unserer Website und den Suchkriterien, die du verwendet hast.
Weitere Energiedaten
Energieträger
Fernwärme
Details
Objektbeschreibung
TownTown besteht aus 19 Company Buildings in unterschiedlichsten Größen und Formen.
Daten und Fakten TownTown:
Multifunktionales Bauprojekt mit mehreren Gebäuden
Überplattung der U-Bahnlinie U3
Nutzung: Büro, Handel, Gastronomie, Freizeiteinrichtungen und Parken
Raum zum Arbeiten. Raum zum Leben...
Ausstattung
- Zugluftfreie Kühlung mittels Betonkernaktivierung (durch Fernwärme bzw. Fernkälte)
- Zentrale Lüftungsanlage
- Besetzter Empfang
- Beleuchtungssysteme und Lichtmanagement
- Videogegensprechanlage
- IT-Verkabelung bereits vorhanden
- Außenliegender Sonnenschutz & innenliegender Blendschutz
-...
Preisinformation
20 Tiefgaragenstellplätze, Miete je: 120,00 EUR
Weitere Informationen
Stichworte
Nutzfläche: 290,00 m², Bundesland: Wien, Mindestmietdauer: 3 Jahre
Anbieter der Immobilie
OTTO Immobilien
Riemergasse 8, 1010 WIEN
Online-ID: 2myap5z
Referenznummer: IVG-O-11350/+3
Finde Angebote wie dieses
Hier geht es zu unserem Impressum, den Allgemeinen Geschäftsbedingungen, den Hinweisen zum Datenschutz und nutzungsbasierter Online-Werbung.