
McMakler GmbH
Ihr McMakler Team
080 ···
Nr. anzeigenPreise & Kosten
Provision für Käufer
Die Provision i.H.v. 2,38 % inkl. MwSt. ist mit Kaufvertragsbeurkundung fällig, sofern der Verkaufspreis über 83.000,00 € liegt.
Liegt der Verkaufspreis dagegen bei/unter 83. Weitere Informationen siehe Provisionshinweis.
Lage
Lage: Idyllische Feldrandlage bietet ruhige, entspannte Atmosphäre für Ruhesuchende
Bildung und Betreuung: Schule und Kindergarten im Umkreis von ca. 1 km
Nahversorgung: Supermärkte, Apotheken, Post- und Bankfilialen in max. 10 Pkw-Minuten
Anbindung: Bushaltestelle in 900 m, 8 km bis Bahnhof Bischofswerda, Autobahn...
Das Renditeobjekt
Baujahr
2024
Bezug
nach Absprache
Energie & Heizung
Warum sehe ich diese Anzeige? – Du siehst diese Anzeige basierend auf Ihrer Navigation auf unserer Website und den Suchkriterien, die du verwendet hast.
Energieausweistyp
Bedarfsausweis
Gebäudetyp
Wohngebäude
Baujahr laut Energieausweis
2024
Wesentliche Energieträger
Strom
Effizienzklasse
A+
Endenergiebedarf
20,00 kWh/(m²·a)
Weitere Energiedaten
Energieträger
Elektro
Heizungsart
Fußbodenheizung
Details
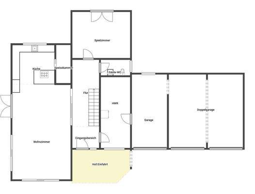
Objektbeschreibung
Objektnr: 1064375
Dieses Architektenhaus präsentiert sich als Familientraum. Ein besonderes Highlight ist der Top-Zustand des modernen Neubaus (Baujahr 2024) mit einer Energieeffizienzklasse von A+ sowie einer Luft-Wasser-Wärmepumpe.
Auf einer familienfreundlichen Wohnfläche von rund 195 m² bietet das...
Ausstattung
+ Komfort durch eine hochwertige Ausstattung des Hauses mit Raumvielfalt, welche eine Milano-
Einbauküche, eine Smart-Home-Anlage sowie eine Fußbodenheizung umfasst
+ Das Objekt präsentiert sich in einem dank Erstbezug tadellosen Zustand
+ Entspannung im Freien: Der Süd-Garten auf ca. 2.600 m² großzügigem Grund...
Weitere Informationen
Provisionshinweis
Die Provision i.H.v. 2,38 % inkl. MwSt. ist mit Kaufvertragsbeurkundung fällig, sofern der Verkaufspreis über 83.000,00 € liegt.
Liegt der Verkaufspreis dagegen bei/unter 83.000,00 €, ist die fest vereinbarte Mindestprovision i.H.v. mind. 5.950,00 € inkl. MwSt. mit Kaufvertragsbeurkundung fällig...
Anbieter der Immobilie
McMakler GmbH
Am Postbahnhof 17, 10243 Berlin
Online-ID: 2myct5j
Referenznummer: 54f31c952f
Finde Angebote wie dieses
Hier geht es zu unserem Impressum, den Allgemeinen Geschäftsbedingungen, den Hinweisen zum Datenschutz und nutzungsbasierter Online-Werbung.