team19 Immobilien GmbH

Frau Silva Baghramian

Direkt am Wasser wohnen - Ihr neues Zuhause an der Alten Donau (provisionsfrei) *Herbst 2026*. - WOHNTRAUM

€ 520.000,97
Kaufpreis
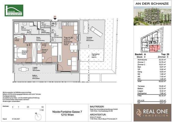
65,48 m²
Wohnfläche ca.
3
Zimmer
Finanzierung berechnen mit durchblicker

Der Anbieter dieses Objekts hat gegenüber der AVIV Germany GmbH als Betreiber dieses Online-Marktplatzes erklärt, nicht als Unternehmer im Sinne des § 1 KSchG zu handeln. Die im Verbraucherschutzrecht der Union verankerten Verbraucherrechte (insbesondere Informationspflichten und Rücktritts- bzw. Widerrufsrechte) finden auf den Vertrag zwischen dem Anbieter des Objekts und Ihnen (dem Interessenten) keine Anwendung.

Gewerblicher Anbieter

Der Anbieter dieses Objekts hat gegenüber der AVIV Germany GmbH als Betreiber dieses Online-Marktplatzes erklärt, als Unternehmer im Sinne des § 1 KSchG zu handeln.

AdresseAn der Schanze 25
1210 Wien 
(Floridsdorf)
Auf Karte ansehen

Preise & Kosten

Kaufpreis € 520.000,97 Preis/m² € 4.530,41

Provision für Käufer

provisionsfrei

Lage

Lage: An der Schanze, Nicole Fontaine Gasse; Antonie-Lehr-Strasse; Simone-Veil-Gasse

Die Wohnung

Wohnungslage

3. Geschoss

Bezug

Herbst 2026

  • Bad mit Wanne
  • Balkon, Loggia, Terrasse
  • Zustand: Erstbezug
  • Weitere Räume: Abstellraum

Wohnanlage

  • Baujahr: 2026
  • Zustand: Neubau
  • Personenaufzug

Energie & Heizung

Heizwärmebedarf (HWB)

B

23,20 kWh/(m²·a)

Gesamtenergieeffizienz (fGEE)

A

0,79

Weitere Energiedaten

Energieträger

Fernwärme

Details

Objektbeschreibung

Wohnen wo andere Urlaub machen - direkt an der Alten Donau - PROVISIONSFREI für den Käufer!

Willkommen in "An der Schanze" - einem einzigartigen Neubauprojekt im Quartier Donaufeld im 21. Wiener Gemeindebezirk. Dieses exklusive Projekt bietet Ihnen 212 moderne und hochwertig ausgestattete Wohnungen, die Ihnen...

Mehr anzeigen

Weitere Informationen

Stichworte
Garage vorhanden, Fahrradraum, Nutzfläche: 114,99 m², Gesamtfläche: 114,78 m², Freifläche: 49,16 m², Anzahl der Badezimmer: 1, Anzahl der separaten WCs: 1, Anzahl Balkone: 1, Anzahl Terrassen: 1, Anzahl Loggias: 1, Balkon-Terrassen-Fläche: 41,50 m², Gartenfläche: 7,66 m², Kellerfläche: 2,51 m², Bundesland: Wien...

Mehr anzeigen

Dokumente

file_pdfDokument 1angle_right

Anbieter der Immobilie

Partner

team19 Immobilien GmbH

im Durchschnitt  4,20  Sterne
(bei 2 Bewertungen)

Handelskai 94-96/44. Stock, 1200 BRIGITTENAU

user

Frau Silva Baghramian

Dein Ansprechpartner

Anbieter-Website Anbieter-Profil Anbieter-Impressum

Online-ID: 2mycy5p

Referenznummer: OBGC2025121406420628036a9b5e12b

Finde Angebote wie dieses

imageimageimage

Günstige Immobilienfinanzierung einfach online berechnen

Persönliches Angebot berechnen

Hier geht es zu unserem Impressum, den Allgemeinen Geschäftsbedingungen, den Hinweisen zum Datenschutz und nutzungsbasierter Online-Werbung.