

DFI-Immobilien UG
Herr Jürgen Lehner
073 ···
Nr. anzeigenPreise & Kosten
Provision für Käufer
4,76 %
Lage
Die Lage in Memmingen ist für Familien besonders attraktiv und bietet eine hohe Lebensqualität. Nur 130 Meter von Ihrem neuen Zuhause entfernt befindet sich die Bushaltestelle AW-Heim Hühnerberg, die eine einfache Anbindung an den öffentlichen Nahverkehr gewährleistet. Für den täglichen Einkauf ist der REWE-Supermarkt in nur...
Das Haus
Kategorie
Einfamilienhaus
Baujahr
1963
Bezug
sofort
Derzeitige Nutzung
frei
Energie & Heizung
Warum sehe ich diese Anzeige? – Du siehst diese Anzeige basierend auf Ihrer Navigation auf unserer Website und den Suchkriterien, die du verwendet hast.
Energieausweistyp
Bedarfsausweis
Gebäudetyp
Wohngebäude
Baujahr laut Energieausweis
1963
Wesentliche Energieträger
Heizöl
Gültigkeit
16.07.2024 bis 15.07.2034
Effizienzklasse
F
Endenergiebedarf
185,94 kWh/(m²·a)
Weitere Energiedaten
Energieträger
Öl
Heizungsart
Zentralheizung
Details
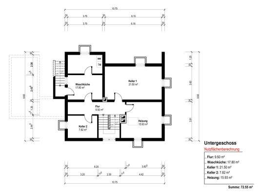
Objektbeschreibung
Dieses großzügige Familienhaus in der charmanten Stadt Memmingen, bietet mit einer Fläche von 199 m² ausreichend Platz für die gesamte Familie. Mit 6 Zimmern, einem modernen Badezimmer und einem separaten WC eignet sich diese Immobilie perfekt für das gemeinschaftliche Wohnen. Das Haus wurde zuletzt im Jahr 2001 renoviert und...
Ausstattung
Das Haus zeichnet sich durch einen einladenden Balkon und eine sonnige Terrasse aus, die ideal sind, um die frische Luft und entspannte Momente im Freien zu genießen. Die helle und geräumige Ausstattung ermöglicht eine flexible Gestaltung und nutzt den verfügbaren Platz optimal.
Weitere Informationen
Zusätzlich zu den vielfachen Vorzügen des Hauses wird diese Immobilie durch die Möglichkeit, sich ein persönliches Zuhause nach eigenen Vorstellungen zu schaffen, besonders attraktiv. Verpassen Sie nicht diese Chance, ein Teil dieser lebendigen Nachbarschaft zu werden. Kontaktieren Sie uns noch heute, um eine Besichtigung zu...
Anbieter der Immobilie
DFI-Immobilien UG
Beckenkreuz 9/3, 89471 Laupheim

Online-ID: 2mye55f
Referenznummer: 8340
Finde Angebote wie dieses
Hier geht es zu unserem Impressum, den Allgemeinen Geschäftsbedingungen, den Hinweisen zum Datenschutz und nutzungsbasierter Online-Werbung.