

Living Haus
Herr Göran Linke
017 ···
Nr. anzeigenPreise & Kosten
Provision für Käufer
provisionsfrei
Lage
Dieses sonnige Baugrundstück befindet sich in einem ruhiges Baugebiet. Das Grundstück wird voll erschlossen an Sie übergeben. Aufgrund der optimalen Lage erreichen Sie Einkaufsmöglichkeiten, Kindertagesstätten, Schulen und medizinische Einrichtungen in kurzer Zeit.
Das Haus
Kategorie
Bungalow
Energie & Heizung
Warum sehe ich diese Anzeige? – Du siehst diese Anzeige basierend auf Ihrer Navigation auf unserer Website und den Suchkriterien, die du verwendet hast.
Weitere Energiedaten
Haustyp
KfW 40
Heizungsart
Luft-/Wasser-Wärmepumpe, Zentralheizung
Details
Objektbeschreibung
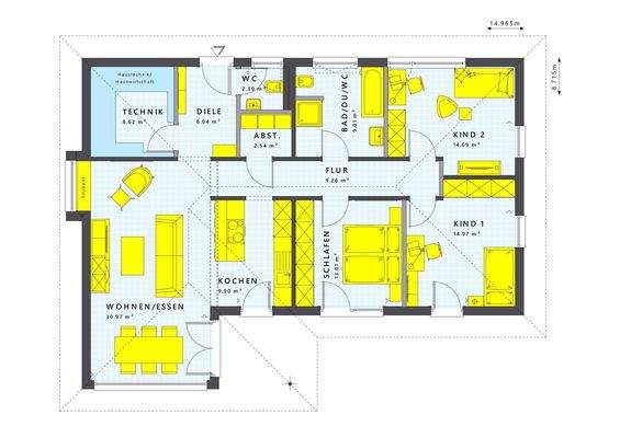
Dieser moderne Bungalow erfüllt einer Familie mit 2 Kindern alle Wünsche von einem pflegeleichten und modernen Zuhause auf einer Ebene! Genial ist der Bungalow auch als Altersruhesitz. Schon beim Betreten des Hauses fallen die Offenheit und Helligkeit des Wohnens auf. Geniessen Sie die Vorteile des großen Koch-, Wohn- und...
Ausstattung
Livinghaus - da ist Alles mit drin:
- Grundstücksservice
- Finanzierungsservice
- Hausbau-Förderung
- alle notwendigen Bauherren-Versicherungen
- DGNB-Zertifizierung in Go
- der Architekt für die Baugenehmigungsplanung
Das Alles brauchen Sie sowieso, deshalb bekommen Sie das bei Livinghaus gleich mit...
Weitere Informationen
Sonstiges
Das hier angebotene Grundstück ist im obigen Preis eingerechnet. Es wird ohne zusätzliche Provision (bei einem Maklerangebot wird Vermittlungsprovision fällig) an einen Livinghaus-Bauherren bereitgestellt. Zusätzliche Baunebenkosten müssen noch hinzugerechnet werden, hierüber berate ich Sie gern.
Die...
Anbieter der Immobilie
Living Haus
Donauwörther Straße 5, 09114 Chemnitz

Online-ID: 2myjh5r
Referenznummer: 30269-22198
Finde Angebote wie dieses
Hier geht es zu unserem Impressum, den Allgemeinen Geschäftsbedingungen, den Hinweisen zum Datenschutz und nutzungsbasierter Online-Werbung.